Ce lot n’est plus disponible chez VIANOVA ou est vendu.

Vous pouvez revenir dans 24h pour vérifier le stock à jour ou contacter un conseiller Vianova pour vérifier le stock en direct.
Vous pouvez également continuer votre recherche sur notre site « ici ».

212 500€
363 000€
1 331€
Type
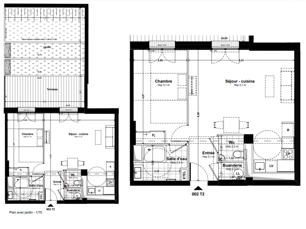
Appt. au 0-RDC
Pièces
T2
Surface
52.7 m²
Exposition
-
Ville
Issy-les-Moulineaux (92130)
Livraison
2ème trimestre 2025
Informations
01 81 80 39 10

Présentation du programme "CARRE DES ARTS"

Autres logements T2 du programme "CARRE DES ARTS"

Disponibilité Prix Genre Pièces Surface Étage
Voir
Archivé
463 000€ Appt. T2 46.6m2 0-RDC
DO NOT CLICK