792 796€ (TVA 20%)
697 000€ (TVA 5.5%)
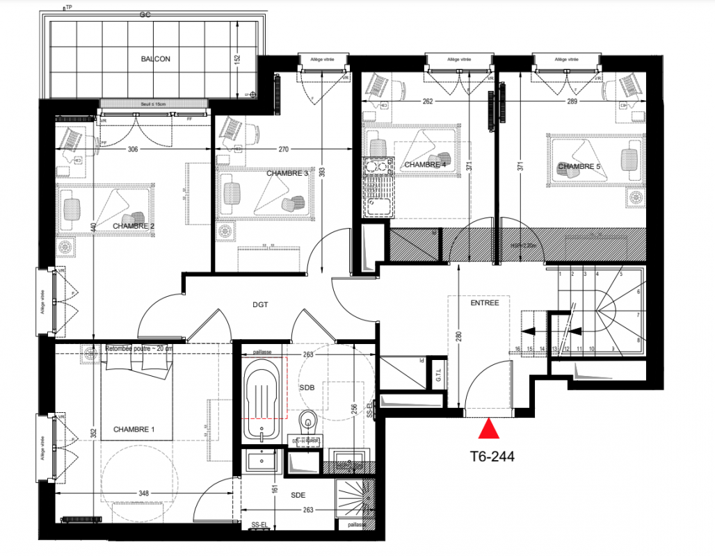
Appt. au 4ème
T6
115 m²
Sud
Fontenay-aux-Roses (92260)
3ème trimestre 2025
01 81 80 39 10
Présentation du programme "APPARTEMENT 5 PIECES DUPLEX"
A proximité de la Coulée verte et du centre-ville animé, BELROSE, au style Art Déco, se veut élégante et raffinée à travers ses matériaux nobles et ses moindres détails architecturaux. Au coeur d'un quartier résidentiel avec de beaux espaces extérieurs, ses appartements neufs, déclinés du 2 pièces au 6 pièces, offrent de belles prestations et des aménagements variés tels que cuisines ouvertes, suites parentales, duplex. Prolongés pour tous par de généreux espaces extérieurs : jardins privatifs, balcons, grandes terrasses ou rooftops. Chez SEERI, nos responsables Design & Personnalisation vous accompagnent tout au long de la conception de votre logement. N'hésitez pas à les solliciter afin d'aménager et optimiser au mieux votre intérieur. Pour toutes informations complémentaires, prenez contact avec nous !

