Prix
237 725€
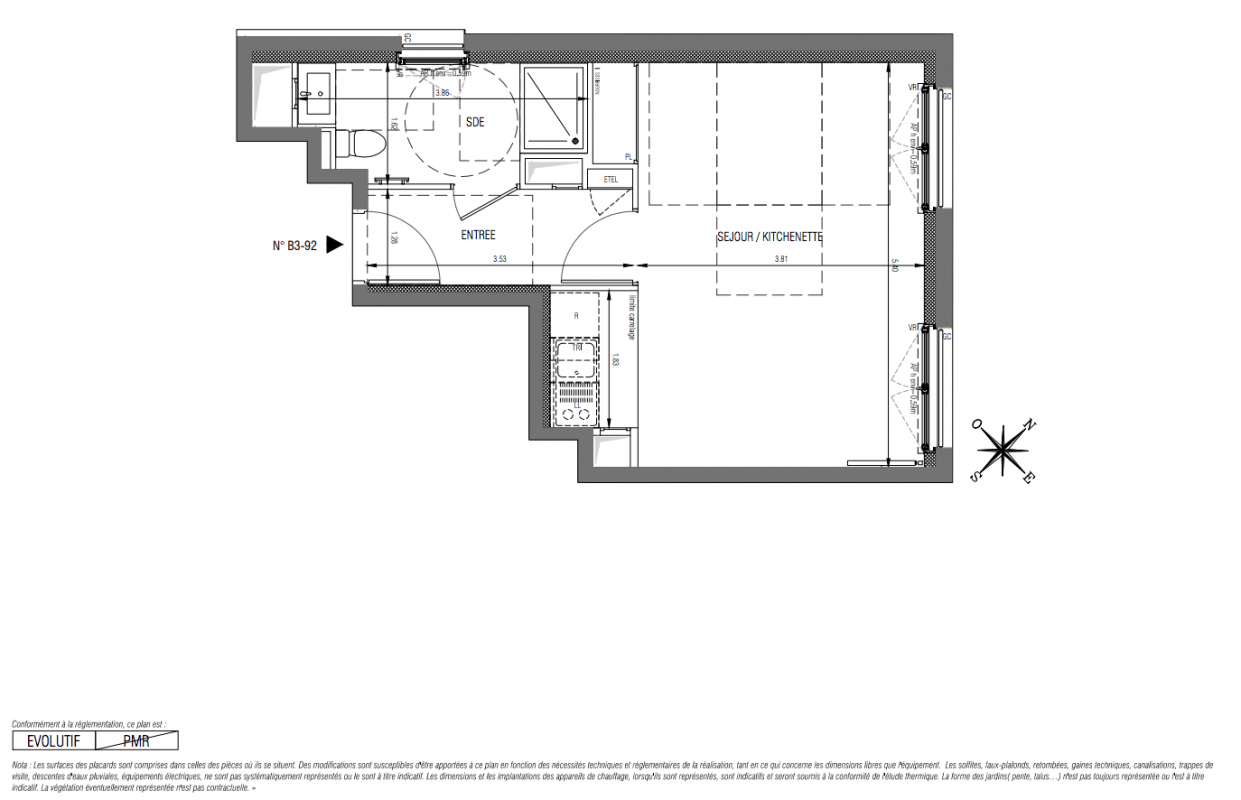
Type
Appt. au 9ème
Pièces
-
Surface
33.47 m²
Exposition
Nord-Est
Ville
Colombes (92700)
Livraison
4ème trimestre 2028
Informations
01 81 80 39 10

Présentation du programme "LE CLOS DES TILLEULS"


Menuiserie PVC Plaxé teinte gris foncé
Volets roulants en aluminium thermolaqué
Revêtement stratifié dans les pièces sèches (largeur 20 cm, 8 coloris au choix)
Carrelage en grés cérame 45 X 45 cm dans les pièces humides
Cloisons épaisseur 7 cm dans l’ensemble des logements
Faïence grès émaillé grand format dans salle d’eau / salle de bain  à hauteur d’huisserie au droit de la baignoire / bac à douche
Meuble vasque avec miroir. Plan vasque en céramique (coloris au choix)

Autres logements - du programme "LE CLOS DES TILLEULS"

Disponibilité Prix Genre Pièces Surface Étage
Voir
Optionné
247 393€ Appt. - 33.37m2 4ème
DO NOT CLICK