Ce lot n’est plus disponible chez VIANOVA ou est vendu.

Vous pouvez revenir dans 24h pour vérifier le stock à jour ou contacter un conseiller Vianova pour vérifier le stock en direct.
Vous pouvez également continuer votre recherche sur notre site « ici ».

Prix
262 000€
Type
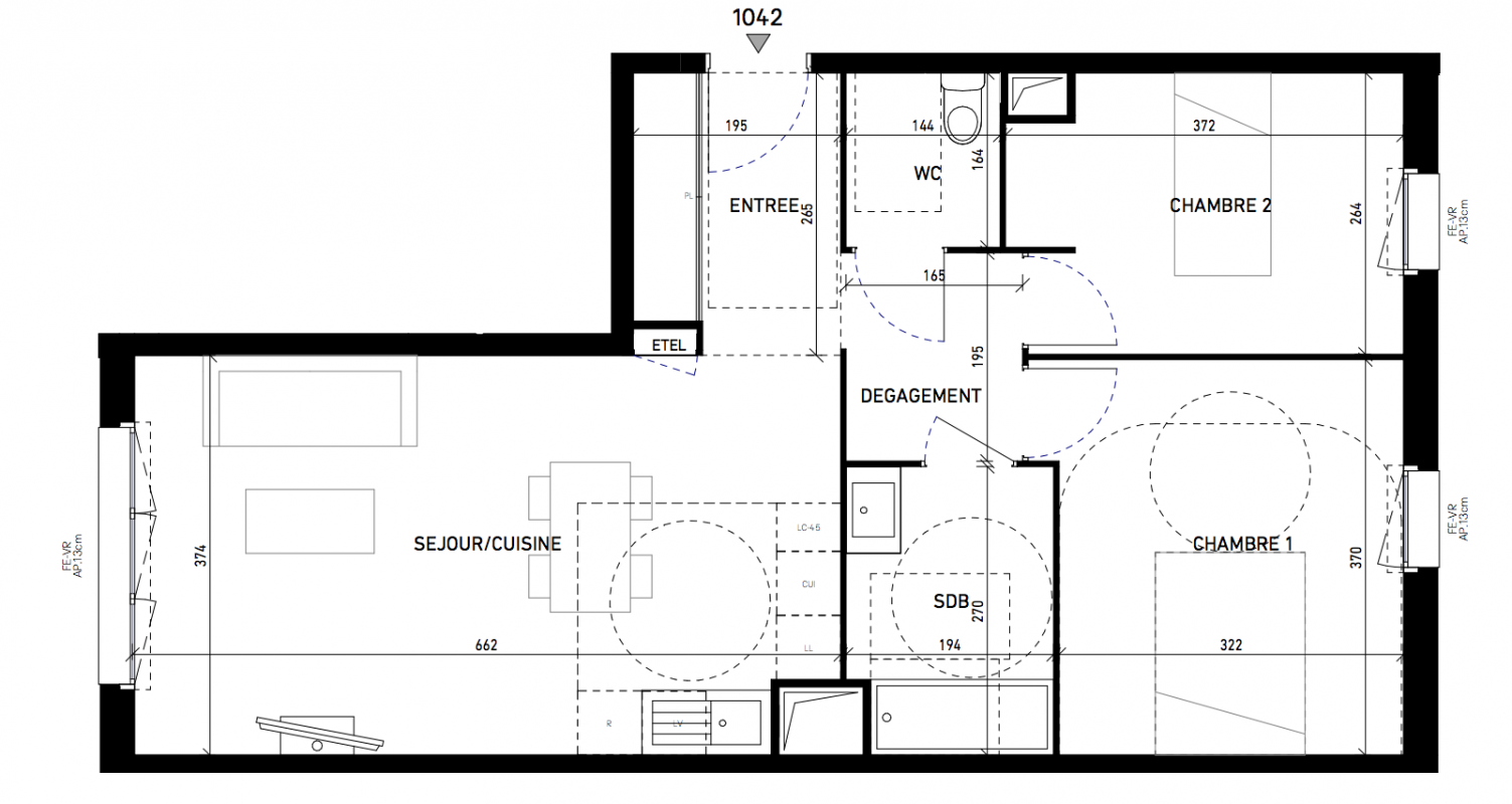
Appt. au 4ème
Pièces
T3
Surface
61 m²
Exposition
Nord-Ouest
Ville
Viry-Châtillon (91170)
Livraison
2ème trimestre 2026
Informations
01 81 80 39 10

Présentation du programme "REGARDS SUR SEINE"

Cette résidence élégante et épurée proposera des appartements neufs du studio au 5 pièces, prolongés pour la majorité de balcon ou terrasse. Aux derniers étages, certains privilégiés profiteront d'une toiture terrasse privative offrant des vues dégagées sur la Seine et sur le parc. L'architecture a été travaillée de manière à ouvrir sur des terrasses en cascade côté parc offrant un accord parfait avec les éléments naturels du site : la verdure et l'eau. Le grand parc végétal réinventera totalement le quartier Châtillon : traversé par un axe central accessible à vélo et par des cheminements piétons ondulant entre les prairies, les clairières et les bulles paysagères. Il permettra d'accéder directement à la gare RER D qui permet de rejoindre la gare de Lyon en 32 minutes*. Pour toutes informations complémentaires, prenez contact avec nous !

Autres logements T3 du programme "REGARDS SUR SEINE"

Pas de logements disponibles
DO NOT CLICK