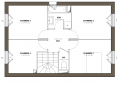
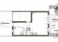
Maison au 0-RDC
T5
95.44 m²
Sud-Est
Ormoy (91540)
4ème trimestre 2028
01 81 80 39 10
Présentation du programme "Villanova"
La résidence se distingue par une architecture élégante et contemporaine qui s'intègre parfaitement au paysage d'Ormoy. Composée de trois bâtiments à taille humaine, elle présente un jeu de volumes équilibrés, offrant une harmonie visuelle idéale. Le cadre paysager est soigneusement conçu, offrant un environnement verdoyant, propice à la détente.Chaque logement, qu'il s'agisse d'un appartement ou d'une maison individuelle, est conçu pour offrir luminosité, confort et bien-être. Les appartements, du studio au 4 pièces, bénéficient pour la plupart d'une double orientation, garantissant une excellente luminosité naturelle. Les espaces sont optimisés pour offrir un cadre de vie agréable et fonctionnel. Les logements disposent de balcons, terrasses ou jardins privatifs, permettant aux résidents de profiter pleinement des extérieurs. Les maisons, de 3 ou 4 chambres, offrent de vastes pièces de vie et un jardin spacieux, parfait pour les moments en famille ou les repas entre amis.


