Prix
210 000€  (TVA 20%)
184 625€  (TVA 5.5%)
Type
Appt. au 0-RDC
Pièces
T2
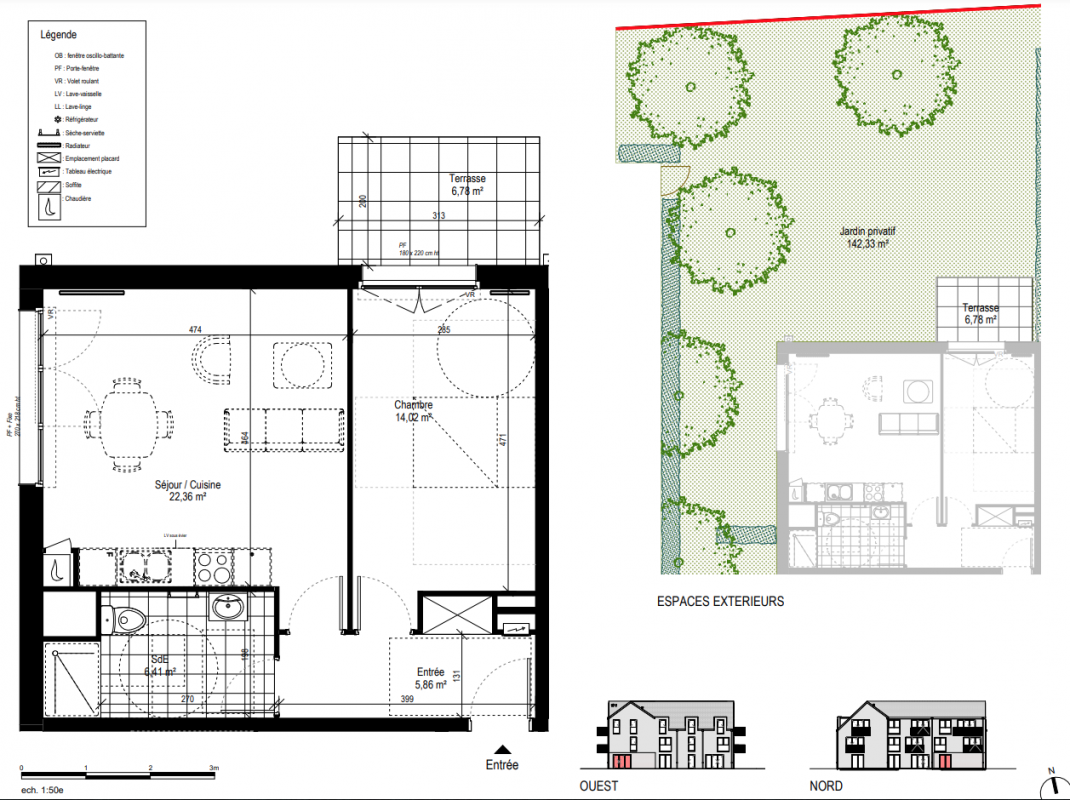
Surface
48.94 m²
Exposition
Nord-Ouest
Ville
Amiens (80000)
Livraison
2ème trimestre 2027
Informations
01 81 80 39 10

Présentation du programme "La galerie des Antiquaires"

Accéder à la maquette 3D de La galerie des AntiquairesSitué en hypercentre, dans le quartier Saint-Leu, La galerie des Antiquaires confère une situation exceptionnelle dans le cœur vivant amiénois. Jadis terre d’antiquaire, ce nouveau lieu de vie ne pourrait être mieux placé à quelques pas de la Cathédrale Notre-Dame et face aux Hortillonnages. Les écoles de la maternelle au supérieur avec des pôles technologiques et de santé, l’animation du quai Bélu, le square Aristide Briand ⇾ Tout est accessible en un instant. L'ensemble intimiste est composé d'un bâtiment de 17 logements en R 2 proposant des typologies du 2 au 4 pièces. Auquel viennent s'ajouter 8 maisons de ville 3 et 4 chambres, déclinées en duplex ou triplex.L'environnementHypercentre dans le quartier Saint-Leu ⇒ secteur priséTout à disposition à piedMix idéal entre animation et douceur de vieLa résidenceArchitecture soignée typique de la régionAu calme, en retrait des grands axes (voir maquette 3D)Éligible à la TVA réduite à 5,5% pour les résidences principalesMAISONSCarrelage en RDC et dans les pièces humidesSol stratifié dans les chambresFenêtres et portes-fenêtres en PVC ou aluminium ouvrant à la française ou oscillo battant selon planPanneaux photovoltaïques en toiture (2 unités par maison)APPARTEMENTSCarrelage dans les pièces humidesSol stratifié dans les pièces de vie (entrée / séjour / chambres)Fenêtres et portes-fenêtres en PVC ou aluminium ouvrant à la française ou oscillo battant selon planMeuble vasque avec miroir et bandeau lumineuxChaudière individuelle à gazA PIEDA 5 min du Parc Saint-PierreA 8 min de la Cathédrale Notre-DameA 12 min de la gareTRAINArras en 37 minParis à 1h15 minLille à 1h17 min

Autres logements T2 du programme "La galerie des Antiquaires"

Disponibilité Prix Genre Pièces Surface Étage
Voir
Disponible
208 000€ Appt. T2 47.85m2 0-RDC
DO NOT CLICK