242 000€
Maison au 0-RDC
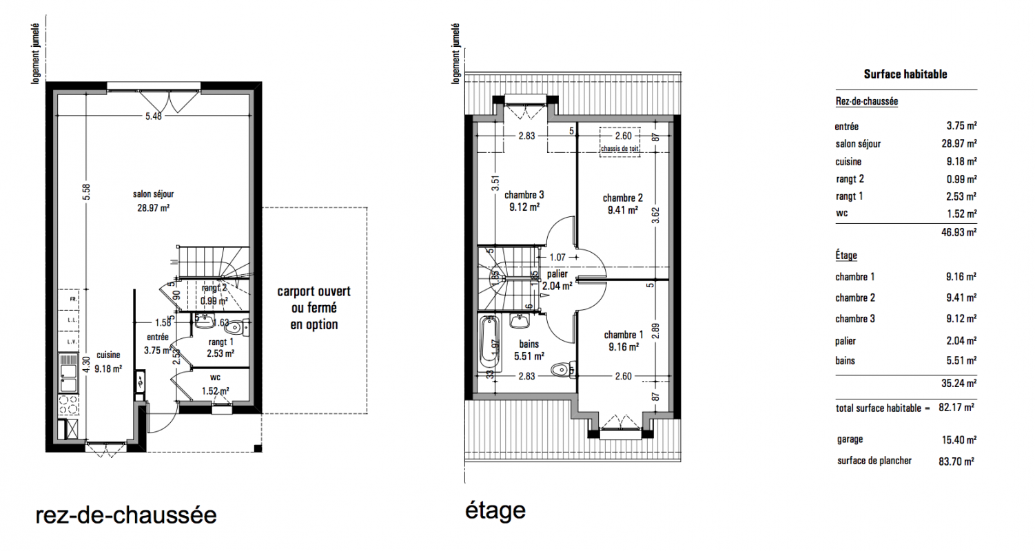
T4
82.17 m²
-
Écurie (62223)
4ème trimestre 2027
01 81 80 39 10
Présentation du programme "LE DOMAINE DES LYS"
DECOUVREZ EN AVANT-PREMIERE :
AUX PORTES D’ARRAS, DEVENEZ PROPRIETAIRE À ECURIE DE VOTRE MAISON « PRÊTE-À-VIVRE »
Maison 4 pièces avec jardin à partir de 239 000 € *
Maison 5 pièces avec jardin à partir de 289 000 € *
PRIX EXCEPTIONNELS DE LANCEMENT : PROFITEZ JUSQU’À 25 000 € DE REMISE* POUR LES 7 PREMIERS RESERVATAIRES* (Les prix affichés comprennent la remise)
Contactez votre interlocuteur EUROPEAN HOMES
*Voir conditions et mentions légales sur le site www.e-h.fr
Grâce au Prêt à Taux Zéro, augmentez votre capacité d’achat en bénéficiant d’un emprunt à taux 0 % pouvant atteindre jusqu’à 72 000 € soit maximum 30 % de l’achat d’une maison individuelle.
À seulement 6 minutes* d’Arras et 14 minutes* de Lens par la N17, la commune d’Écurie offre un cadre de vie idéal pour les familles à la recherche de calme et de verdure, sans renoncer à la proximité du bassin d’emplois à Arras, des services et des transports. Nichée dans un environnement préservé, Écurie séduit par son atmosphère paisible, tout en permettant de rejoindre la gare TGV d’Arras en 10 minutes*.
DES MAISONS PENSEES POUR LES FAMILLES
Forte de son expérience de plus de 50 ans, European Homes est précurseur de la maison en village « prête à vivre ». Inspiré du modèle américain, il propose plusieurs types de maisons familiales, entourés de jardins privatifs et clôturés.
Situé route de Lens, « LE DOMAINE DES LYS » propose 38 maisons familiales « prêtes-à-vivre » de 4 et 5 pièces, 4 modèles allant de 82 m2 à 116 m2, toutes prolongées par un jardin privatif engazonné et clôturé. Toutes les maisons disposent d’un stationnement extérieur et la plupart d’un garage attenant. Un espace paysager commun vient compléter l’ensemble, pour un cadre de vie serein et convivial. Fort de son savoir-faire de plus de 50 ans en immobilier résidentiel, European Homes réinvente la qualité de vie à Ecurie.
TOUS LES ESSENTIELS POUR UN CADRE DE VIE SEREIN
Pensé pour les familles, le quartier vous facilite le quotidien : une crèche est accessible en 8 minutes* à pied, tout comme l’école primaire Haroun Tazieff. L’école maternelle Jean-Yves Cousteau se trouve à 4 minutes* en voiture. Les collégiens et lycéens profitent d’une bonne desserte en transports scolaires, avec l’arrêt de bus à l’église d’Écurie, desservi par les lignes C30 et 11 pour rejoindre le collège Verlaine ou le lycée Robespierre.
Côté commerces, vous trouverez un Intermarché à 5 minutes* de voiture et le centre commercial Aushopping Arras à seulem
Autres logements T4 du programme "LE DOMAINE DES LYS"
| Disponibilité | Prix | No | Genre | Pièces | Surface | Étage | Disponibilité | Prix | ||
|---|---|---|---|---|---|---|---|---|---|---|
| Voir | Disponible | 287 000€ | M003 | Maison | T4 | 93.77m2 | 0-RDC | Disponible | 287 000€ | Voir |
| Voir | Disponible | 295 000€ | M012 | Maison | T4 | 93.77m2 | 0-RDC | Disponible | 295 000€ | Voir |
| Voir | Disponible | 291 000€ | M015 | Maison | T4 | 93.77m2 | 0-RDC | Disponible | 291 000€ | Voir |
| Voir | Disponible | 247 500€ | M018 | Maison | T4 | 82.17m2 | 0-RDC | Disponible | 247 500€ | Voir |
| Voir | Disponible | 247 500€ | M019 | Maison | T4 | 82.17m2 | 0-RDC | Disponible | 247 500€ | Voir |