Ce lot n’est plus disponible chez VIANOVA ou est vendu.

Vous pouvez revenir dans 24h pour vérifier le stock à jour ou contacter un conseiller Vianova pour vérifier le stock en direct.
Vous pouvez également continuer votre recherche sur notre site « ici ».

Prix
289 934€  (TVA 20%)
254 900€  (TVA 5.5%)
Type
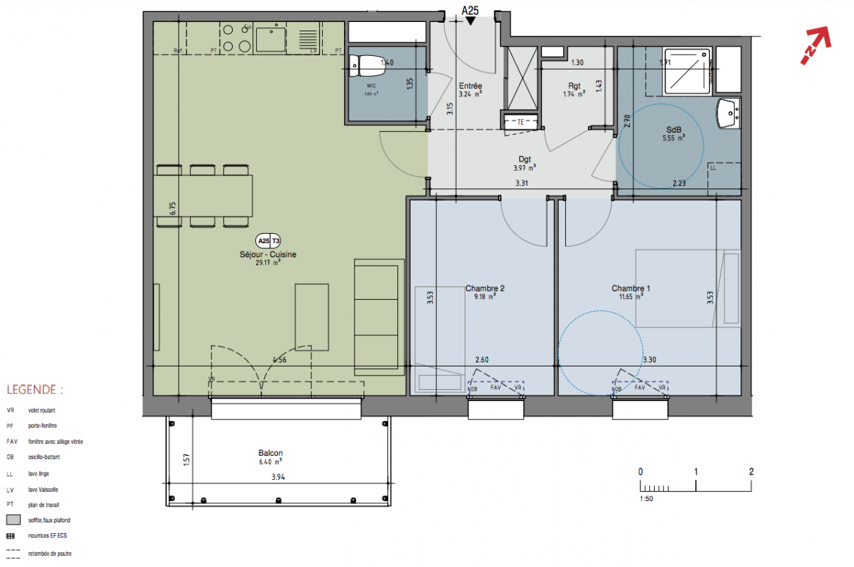
Appt. au 2ème
Pièces
T3
Surface
66.4 m²
Exposition
-
Ville
Berck (62600)
Livraison
1er trimestre 2027
Informations
01 81 80 39 10

Présentation du programme "Le Flibustier"

Le Flibustier est un programme immobilier neuf situé à Berck-sur-Mer, station balnéaire reconnue de la Côte d'Opale, à seulement 6 minutes à vélo de la plage et à proximité immédiate du centre-ville, des commerces et des services.

La résidence se compose de 20 appartements neufs, du studio au T4 en duplex, dont 2 duplex familiaux, tous dotés d'un balcon ou d'une terrasse. Les logements offrent des volumes fonctionnels, une luminosité naturelle optimisée et des prestations conformes aux standards actuels de l'immobilier neuf : ascenseur PMR, stationnements, local à vélos et accès sécurisé.

L'architecture contemporaine, avec façades en enduit clair et toiture cuivrée, s'intègre harmonieusement dans l'environnement urbain de Berck-sur-Mer et contribue à la valorisation patrimoniale du projet.

Conforme à la réglementation RE2020, la résidence garantit des performances énergétiques maîtrisées et un confort durable pour les occupants.

Autres logements T3 du programme "Le Flibustier"

Disponibilité Prix Genre Pièces Surface Étage
Voir
Disponible
278 559€ Appt. T3 64.4m2 1er
Voir
Disponible
284 246€ Appt. T3 66.4m2 1er
Voir
Disponible
295 621€ Appt. T3 72m2
Le bon plan
3ème
DO NOT CLICK