Prix
145 400€
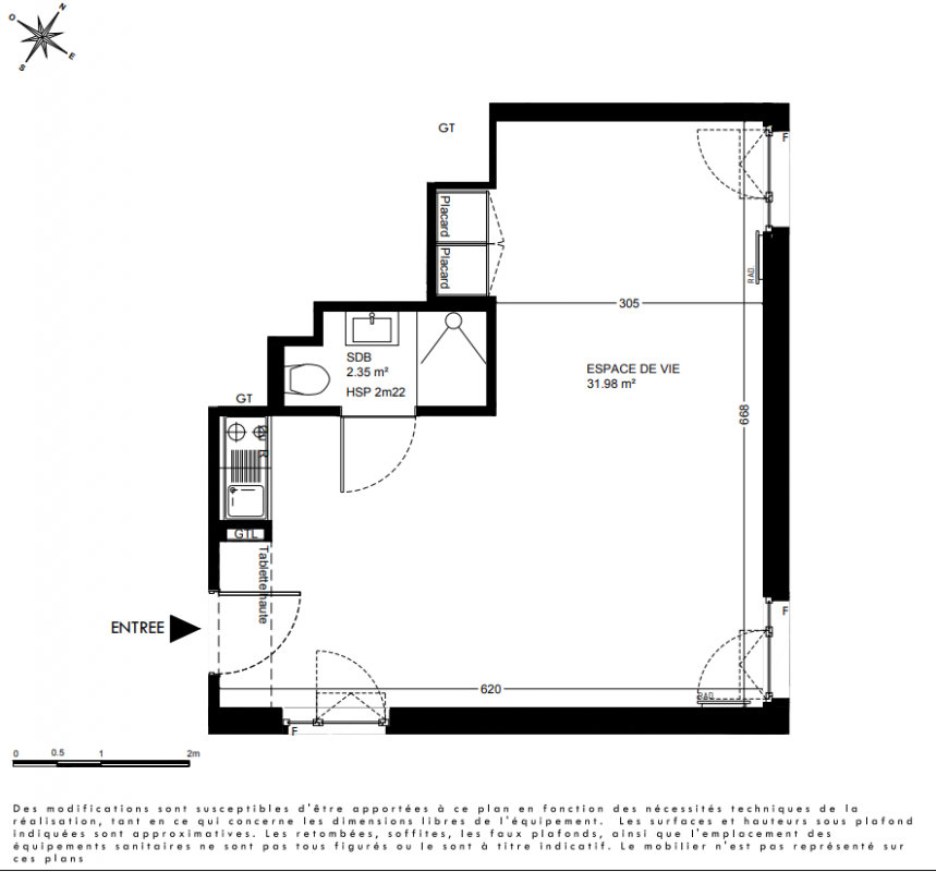
Type
Appt. au 5ème
Pièces
Studio
Surface
33.29 m²
Exposition
Nord
Ville
Lille (59000)
Livraison
1er trimestre 2025
Informations
01 81 80 39 10

Présentation du programme "Student Factory Lille Euratechnologies"

Descriptif résidenceUn emplacement stratégique au cœur d’un quartier d’avenirSituée à l’ouest de Lille, dans le quartier des Bois-Blancs, la résidence se trouve à deux pas du pôle d’excellence numérique Euratechnologies, l’un des plus grands incubateurs et accélérateurs d’entreprises tech en Europe. Ce quartier est décrit comme dynamique, créatif et en plein renouveau, structuré autour de l’innovation et des start-ups.Le secteur Euratechnologies offre un environnement qualitatif, moderne et parfaitement adapté à la vie étudiante :Proximité immédiate des commerces : Lidl à 7 min, Carrefour à 8 min.Accès rapide au centre-ville et aux grandes écoles grâce à un maillage de transports performant.Ambiance urbaine jeune et dynamique, rythmée par les événements tech, cafés et tiers-lieux du pôle Euratech.Proximité des universités et écolesL’emplacement est stratégique pour attirer un grand bassin d’étudiants : les campus et écoles sont accessibles en 15 à 20 minutes en transports.Lille est l’un des plus grands pôles universitaires de France avec :Université de Lille (plusieurs campus),EDHEC Business School,IESEG School of Management,JUNIA / HEI / ISEN,Sciences Po Lille,ENSAP,IUT et multiples écoles spécialisées.Accessibilité optimaleLe quartier est extrêmement bien desservi, ce qui renforce l’attractivité pour les étudiants et jeunes actifs :Bus 18 – Arrêt Euratechnologies à 2 min de la résidence.Métro M2 – Arrêts Canteleu ou Bois Blancs à 7 min.Une résidence moderne, très recherchée et pensée pour la génération étudianteLa résidence propose :206 appartements meublés, du T1 au T3 en colocation ;Un coworking de 150 m², une cafétéria, des espaces détente, une laverie ;Une connexion internet très haut débit, des services connectés et un environnement sécurisé. Descriptif gestionnaireStudent Factory est une marque créée en 2016 par VINCI Immobilier, filiale du groupe VINCI, acteur mondial dans les métiers de la construction et des concessions. Elle incarne une nouvelle génération de résidences étudiantes, avec une approche hybride, innovante et connectée, pensée pour répondre aux besoins évolutifs des étudiants, jeunes actifs et voyageurs.Student Factory propose :Des logements meublés et équipés (du studio au T3 en colocation)Une décoration de style industriel, inspirée des lofts new-yorkaisDes espaces communs généreux : coworking, chilling room, lounges, babyfoot corner…Une expérience communautaire : animations régulières, vie sociale, entraideL’objectif es...

Autres logements Studio du programme "Student Factory Lille Euratechnologies"

Disponibilité Prix Genre Pièces Surface Étage
Voir
Disponible
142 700€ Appt. Studio 33.29m2 4ème
DO NOT CLICK