Prix
346 000€
Type
Appt. au 3ème
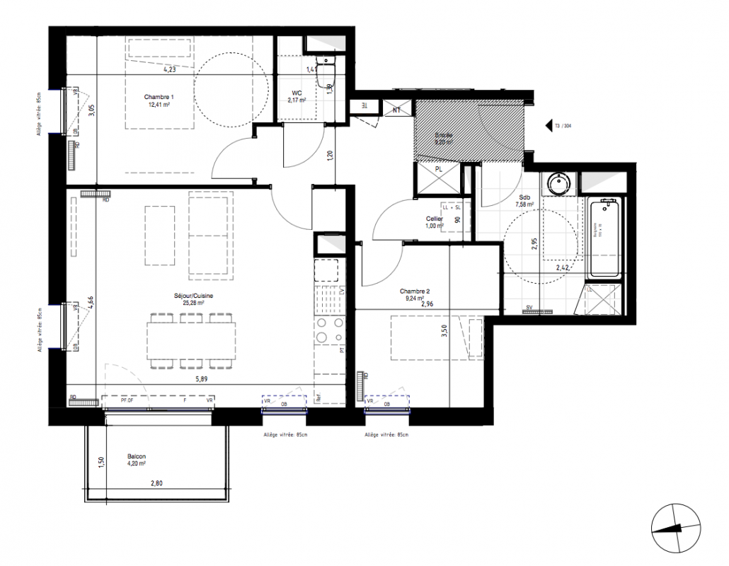
Pièces
T3
Surface
66.89 m²
Exposition
-
Ville
Lambersart (59130)
Livraison
1er trimestre 2027
Informations
01 81 80 39 10

Présentation du programme "IVOIRE - LAMBERSART"

Nacarat et Loger Habitat vous proposent une nouvelle adresse idéalement située à Lambersart.
Devenez propriétaire de votre appartement neuf, à mi-chemin entre le Canon d'Or et la Citadelle. Cette élégante résidence à taille humaine, propose des logements du studio au 4 pièces, avec espace extérieur et stationnement privatif.

Autres logements T3 du programme "IVOIRE - LAMBERSART"

Disponibilité Prix Genre Pièces Surface Étage
Voir
Disponible
351 000€ Appt. T3 62.53m2 4ème
Voir
Disponible
349 000€ Appt. T3 68.41m2 3ème
DO NOT CLICK