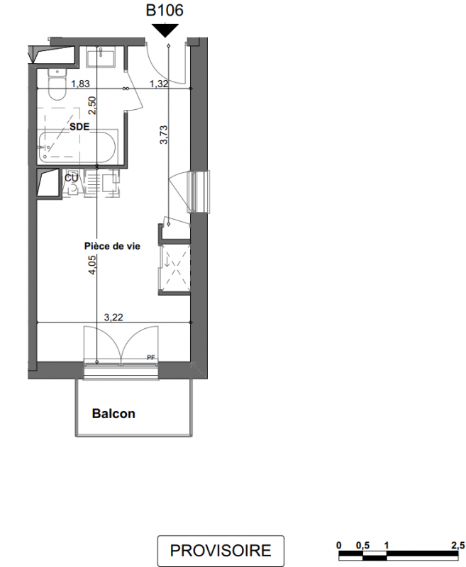
102 500€
Appt. au 1er
Studio
19.91 m²
Est
Anzin (59410)
3ème trimestre 2027
01 81 80 39 10
Présentation du programme "Programme neuf Anzin (59410)"
Investissez dans une nouvelle résidence étudiante à Valenciennes et profitez d_un rendement locatif jusqu_à 6,5%* par an !La ville abrite notamment Rubika, l'une des meilleures facultés de Design produit de France, située à seulement 5 min en vélo, ou à 16 min en tramway dont l_arrêt se situe à seulement 5 min. à pied. Toutes proches, les universités de Polytechnique des Hauts-de-France, l_IUT ainsi que le centre Hospitalier de Valenciennes viennent conforter le besoin de nombreux jeunes actifs et d'étudiants à la recherche de logements.La proximité avec Valenciennes, accessible en seulement 6 min en voiture, ainsi que la gare TGV reliant Lille Flandres, Douai et Paris Nord, constitue un atout majeur. La commune est également très bien desservie par les nombreux bus et tramway, qui parcourent l'ensemble de la ville et offrent un accès facile à notre résidence.Contactez-vite un de nos conseillers pour bénéficier de notre offre exclusive et découvrir tous nos logements neufs à Valenciennes !
Autres logements Studio du programme "Programme neuf Anzin (59410)"
| Disponibilité | Prix | No | Genre | Pièces | Surface | Étage | Disponibilité | Prix | ||
|---|---|---|---|---|---|---|---|---|---|---|
| Voir | Disponible | 104 500€ | A006 | Appt. | Studio | 19.78m2 | 0-RDC | Disponible | 104 500€ | Voir |
| Voir | Disponible | 104 500€ | A009 | Appt. | Studio | 19.74m2 | 0-RDC | Disponible | 104 500€ | Voir |
| Voir | Disponible | 103 500€ | A216 | Appt. | Studio | 19.78m2 | 2ème | Disponible | 103 500€ | Voir |
| Voir | Optionné | 103 500€ | A218 | Appt. | Studio | 19.78m2 | 2ème | Optionné Mais pas encore vendu 😉 | 103 500€ | Voir |
| Voir | Disponible | 104 500€ | B001 | Appt. | Studio | 19.49m2 | 0-RDC | Disponible | 104 500€ | Voir |
| Voir | Disponible | 104 500€ | B003 | Appt. | Studio | 19.78m2 | 0-RDC | Disponible | 104 500€ | Voir |
| Voir | Disponible | 104 500€ | B004 | Appt. | Studio | 19.78m2 | 0-RDC | Disponible | 104 500€ | Voir |
| Voir | Disponible | 104 500€ | B005 | Appt. | Studio | 19.91m2 | 0-RDC | Disponible | 104 500€ | Voir |
| Voir | Disponible | 104 500€ | B006 | Appt. | Studio | 19.91m2 | 0-RDC | Disponible | 104 500€ | Voir |
| Voir | Disponible | 103 500€ | B010 | Appt. | Studio | 19.78m2 | 0-RDC | Disponible | 103 500€ | Voir |
| Voir | Disponible | 103 500€ | B011 | Appt. | Studio | 19.78m2 | 0-RDC | Disponible | 103 500€ | Voir |
| Voir | Disponible | 103 500€ | B101 | Appt. | Studio | 19.49m2 | 1er | Disponible | 103 500€ | Voir |
| Voir | Disponible | 103 500€ | B102 | Appt. | Studio | 19.78m2 | 1er | Disponible | 103 500€ | Voir |
| Voir | Disponible | 103 500€ | B103 | Appt. | Studio | 19.78m2 | 1er | Disponible | 103 500€ | Voir |
| Voir | Disponible | 103 500€ | B104 | Appt. | Studio | 19.78m2 | 1er | Disponible | 103 500€ | Voir |
| Voir | Disponible | 103 500€ | B105 | Appt. | Studio | 19.91m2 | 1er | Disponible | 103 500€ | Voir |
| Voir | Disponible | 101 500€ | B108 | Appt. | Studio | 19.78m2 Le bon plan | 1er | Disponible | 101 500€ | Voir |
| Voir | Disponible | 102 500€ | B109 | Appt. | Studio | 19.78m2 | 1er | Disponible | 102 500€ | Voir |
| Voir | Disponible | 102 500€ | B110 | Appt. | Studio | 19.78m2 | 1er | Disponible | 102 500€ | Voir |
| Voir | Disponible | 102 500€ | B111 | Appt. | Studio | 19.78m2 | 1er | Disponible | 102 500€ | Voir |
| Voir | Disponible | 102 500€ | B112 | Appt. | Studio | 19.78m2 | 1er | Disponible | 102 500€ | Voir |
| Voir | Disponible | 103 500€ | B113 | Appt. | Studio | 19.91m2 | 1er | Disponible | 103 500€ | Voir |
| Voir | Disponible | 104 500€ | B201 | Appt. | Studio | 19.49m2 | 2ème | Disponible | 104 500€ | Voir |
| Voir | Disponible | 104 500€ | B202 | Appt. | Studio | 19.78m2 | 2ème | Disponible | 104 500€ | Voir |
| Voir | Optionné | 104 500€ | B203 | Appt. | Studio | 19.78m2 | 2ème | Optionné Mais pas encore vendu 😉 | 104 500€ | Voir |
| Voir | Disponible | 103 500€ | B212 | Appt. | Studio | 19.78m2 | 2ème | Disponible | 103 500€ | Voir |