45 000€
270 036€
600€
Type
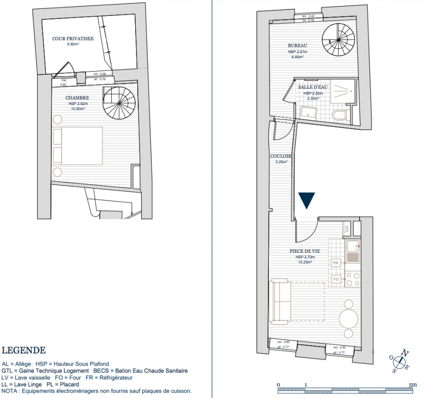
Appt. au 1er
Pièces
T2
Surface
39.5 m²
Exposition
-
Ville
Metz (57000)
Livraison
-
Informations
01 81 80 39 10

Présentation du programme "Rue Saint-Etienne"

À la fois contemporaine et cité trimillénairecité, Metz, ville historique de Lorraine, se distingue par son patrimoine urbain, architectural et paysager exceptionnel qui s’égrène le long des rives de la Moselle.   C'est dans le quartier Outre- Seille, que l'immeuble au 3 rue Saint-Étienne jouit d’un emplacement privilégié au cœur du centre historique de la ville. Les rues piétonnes de la vieille ville, bordées de vitrines, sont un appel à la flânerie, entre le jardin des Tanneurs et les terrasses de la place Saint-Louis.   Cet immeuble se dresse sur 5 étages et proposera 7 appartements du T1 au T3.

Autres logements T2 du programme "Rue Saint-Etienne"

Disponibilité Prix Genre Pièces Surface Étage
Voir
Disponible
319 138€ Appt. T2 40.1m2 4ème
Voir
Disponible
336 125€ Appt. T2 42m2 0-RDC
DO NOT CLICK