Prix
149 000€
Type
Appt. au 3ème
Pièces
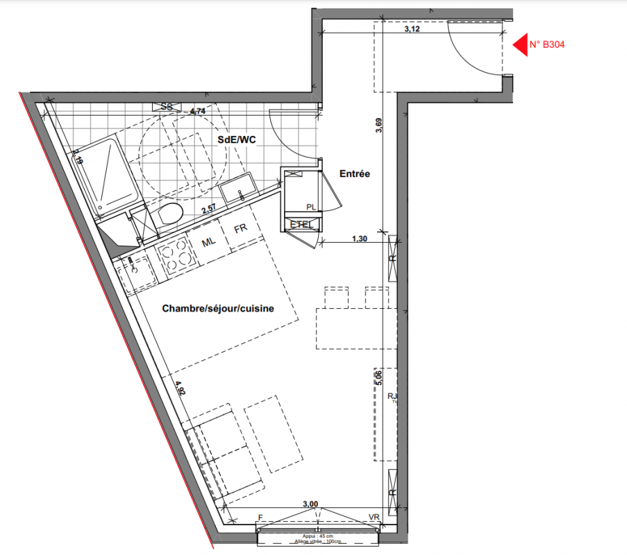
Studio
Surface
36.37 m²
Exposition
Sud
Ville
Villers-lès-Nancy (54600)
Livraison
2ème trimestre 2026
Informations
01 81 80 39 10

Présentation du programme "VILLE&NATURE"

 LE PRINTEMPS DE L'IMMO : JUSQU'A 10 000€ DE REMISE + FRAIS DE NOTAIRE OFFERTS !*Appartement meublé et décoré à venir visiter sur place - livraison imminente !
Dernières opportunités pour emménager dès demain au sen de cette résidence livrée ! Envie d’investir ? Cette résidence est éligible au nouveau dispositif d’investissement locatif JEANBRUN, pour constituer un patrimoine, réduire vos impôts et préparer votre retraite !Dernier studio de 36 m² - pièce de vie de 20 m² - exposé sud - parking Appartements T2 : de 39 à 49 m² - terrasse ou balcon pour tous Derniers appartements T3 : de 66 à 70 m² - terrasse ou balcon pour tous - parking Appartements T4 : jusqu'à 86 m² - balcon ou terrasse pour tous - exposés sud - parking L'ensemble de nos logements sont vendus avec une salle de bains équipée ! 
Vous êtes primo-accédant ? Le programme est éligible au Prêt à Taux Zéro, sous conditions de ressources et d’éligibilité, pour vous aider à financer plus facilement votre résidence principale neuve.
Vous souhaitez investir ? Demathieu Bard Immobilier vous propose une solution en LMNP non gérée, adaptée pour un investissement locatif rentable dans un environnement naturel à forte demande résidentielle.

Pour plus d’informations ou pour visiter notre appartement décoré, contactez dès maintenant nos conseillers au 06 08 80 33 63.*Frais de notaire offerts + Remise de 2 500€ TTC par pièce principale soit 2 500€ pour un T1, 5 000€ pour un T2, 7 500€ pour un T3, 10 000€ pour un T4. Offre valable pour les 5 prochains réservataires, sous conditions de la signature d'un contrat de réservation jusqu'au 15/05/2026 et à la réitération de l’acte authentique de vente dans les 3 mois qui suivent la réservation.

Autres logements Studio du programme "VILLE&NATURE"

Pas de logements disponibles
DO NOT CLICK