Ce lot n’est plus disponible chez VIANOVA ou est vendu.
Vous pouvez revenir dans 24h pour vérifier le stock à jour ou contacter un conseiller Vianova pour vérifier le stock en direct.
Vous pouvez également continuer votre recherche sur notre site « ici ».
274 200€
Appt. au 2ème
-
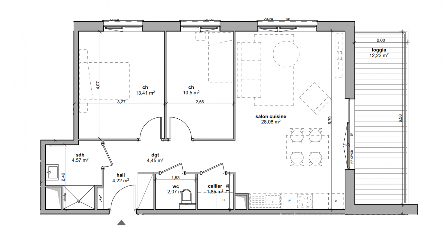
69.15 m²
-
Reichstett (67116)
4ème trimestre 2027
01 81 80 39 10
Présentation du programme "PATIO ROSA"
FRAIS DE NOTAIRE OFFERTS + REMISE DE 1 500 EUROS PAR PIECE *
PATIO ROSA - Appartements neufs à Reichstett, aux portes de Strasbourg.
Située rue du Général de Gaulle, la résidence s'inscrit au coeur de l'écoquartier des Vergers de Saint-Michel, dans un environnement à la fois verdoyant et pratique, à seulement 7 km de Strasbourg.
À proximité immédiate des commerces (supermarché en face), des écoles et des équipements du quotidien, l'adresse offre un cadre de vie équilibré entre sérénité et dynamisme. Les lignes de bus au pied de la résidence permettent de rejoindre rapidement Strasbourg et les pôles de transport.
La résidence propose 32 appartements du 2 au 5 pièces, au sein d'un ensemble à taille humaine à l'architecture contemporaine, réparti sur 3 étages avec attique.
Les logements offrent des espaces de vie lumineux, avec cuisine ouverte sur le séjour et prolongements extérieurs pour tous : loggia, terrasse ou jardin privatif. Certains appartements bénéficient d'une double orientation, favorisant lumière et confort au quotidien.
u quotidien, profitez d'un environnement complet : supermarché en face de la résidence, école à 600 m (environ 7 minutes à pied), bus lignes 74 et 76 au pied de la résidence, accès rapide à Strasbourg (environ 30 min en bus)
Un cadre de vie entre nature et proximité urbaine, idéal pour habiter ou investir aux portes de Strasbourg.
Contactez-nous dès maintenant au 03 79 33 10 10 pour plus d'informations !
* Offres promotionnelles valables du 01/04/2026 au 30/04/2026 inclus, dans la limite des stocks disponibles, sous réserve de la signature d'un contrat de réservation d'un logement SPIRIT. Remise d'un montant de 1 500 euros par pièce principale (pièce hors cuisine et hors salle de bains), soit 1 500 € pour un T1, 3 000€ pour un T2, 4 500€ pour un T3, 6 000 € pour un T4 et 7 500 € pour un T5. Ces remises sont calculées sur la base du prix de vente TTC figurant sur la grille de prix selon le taux de TVA en vigueur et consenties dans le cadre d'un avenant au contrat de réservation. Les frais de notaire sont pris en charge par la SCI, hors frais d'hypothèque, de garantie bancaire et de règlement de copropriété.
Autres logements - du programme "PATIO ROSA"
| Disponibilité | Prix | No | Genre | Pièces | Surface | Étage | Disponibilité | Prix | ||
|---|---|---|---|---|---|---|---|---|---|---|
| Voir | Archivé | 385 700€ | J204 | Appt. | - | 81.51m2 | 0-RDC | Archivé | 385 700€ | Voir |
| Voir | Archivé | 293 700€ | J227 | Appt. | - | 75.7m2 | 2ème | Archivé | 293 700€ | Voir |
| Voir | Archivé | 226 399€ | J231 | Appt. | - | 42.92m2 | 3ème | Archivé | 226 399€ | Voir |
| Voir | Archivé | 284 200€ | J218 | Appt. | - | 66m2 | 1er | Archivé | 284 200€ | Voir |
| Voir | Archivé | 300 199€ | J232 | Appt. | - | 67.1m2 | 3ème | Archivé | 300 199€ | Voir |