Prix
431 100€
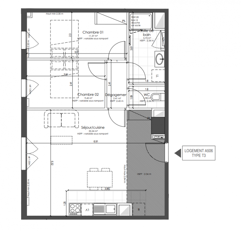
Type
Appt. au 5ème
Pièces
T3
Surface
66.17 m²
Exposition
Nord-Ouest
Ville
Troyes (10000)
Livraison
3ème trimestre 2026
Informations
01 81 80 39 10

Présentation du programme "Les Magasins Reunis"

Ce programme comprend 74 duplex et appartements neufs. Ils sont de type T1, T1 bis, T2, T3, T3 bis, T4, T4 bis et T5 et peuvent faire office d'investissement locatif. Leur livraison est annoncée à la fin de l'année 2026 et ils sont éligibles au dispositif Malraux.

Autres logements T3 du programme "Les Magasins Reunis"

Disponibilité Prix Genre Pièces Surface Étage
Voir
Disponible
421 300€ Appt. T3 57.71m2 5ème
DO NOT CLICK