Prix
202 000€  (TVA 20%)
177 592€  (TVA 5.5%)
Type
Appt. au 3ème
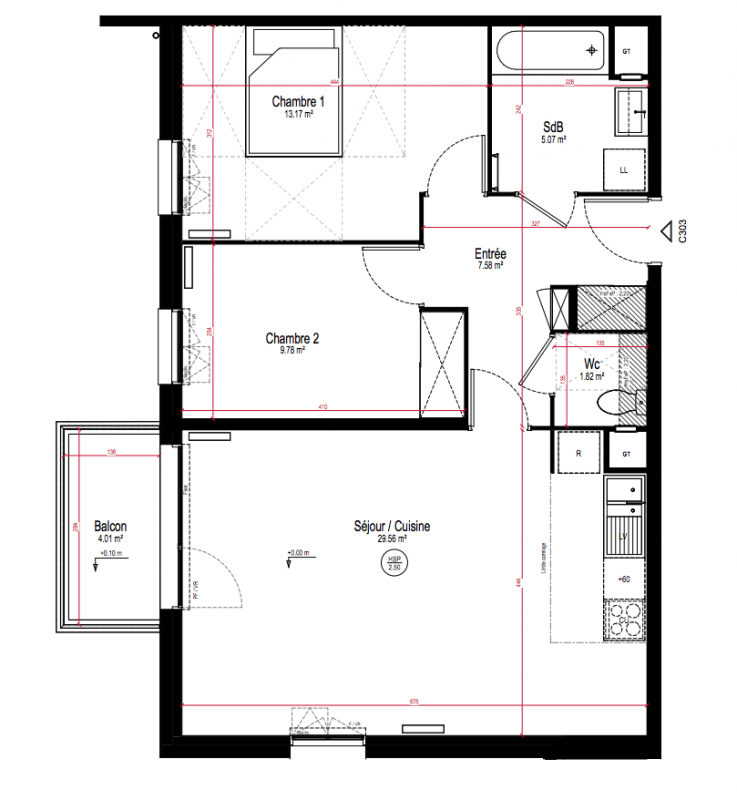
Pièces
T3
Surface
66.98 m²
Exposition
Ouest
Ville
Chartres (28000)
Livraison
2ème trimestre 2027
Informations
01 81 80 39 10

Présentation du programme "Renaissance"

- 25000€ SUR LES T4 & T5 FRAIS DE NOTAIRE OFFERTS BOOST HONORAIRES DE COMMERCIALISATIONAccéder à la maquette 3D de RenaissanceÀ l’est de la ville, le programme Renaissance vous réserve une adresse bien desservie pour rejoindre rapidement le cœur de ville. Dans un quartier en expansion, La Madeleine, profitez des atouts d'un environnement en plein renouveau. Répartis sur 2 bâtiments, les 59 appartements se déploient à la rencontre des avenues Joseph Pichard et des Sablons, du studio au 5 pièces familial. Programme éligible à la TVA réduite 5,5%Cadre de vie agréable et lumineux grâce à une double orientation pour la plupart des biensEspaces extérieurs généreux : jardins individuels, balcons spacieux et terrasses plein cielParking souterrain et espaces réservés aux vélos et poussettesPerformances énergétiques soumises à la RE2020Chauffage et eau chaude : Production collective par une sous-station en sous-sol, raccordée au réseau de chaleur urbain de la ville de ChartresProximité immédiateCentre commercial La Madeleine (Carrefour, Picard, BUT…) à 350mCrèches à 450mÉcoles maternelle, élémentaire, collèges et lycée dans un rayon de 600mComplexes sportifs (Tennis de table, football, multisports) à 500mCentre-ville de Chartres en 5 minutes de routeEn voitureRenaissance est située à 3 km du centre-ville de ChartresDepuis l’A11 (L’Océane Paris – Nantes), sortie n° 2 « Chartres Est »Accès à l’A11 à 5,5 kmTransports en communBUS : Arrêt « Moquet » à 120 m desservi par les lignes 4 (Lucé Les Carreaux ↔ Chartres La Madeleine) et 12 (ZA Gellainville - Guerlain ↔ Chartres gare) rejoignant notamment le centre-ville en 18 min et la gare en 20 minInfo plus BHNS : À compter de septembre 2025, le Bus à Haut Niveau de Service de Chartres Métropole desservira le quartier de La Madeleine via l’avenue Jean Mermoz à proximité de Renaissance.SNCF : Gare TGV-TER-OUIGO de Chartres à 3,3 km reliant Paris-Montparnasse en 1 h env.AVION : Aéroport de Paris-Orly à 78,4 km via l’A11 et l’A10

Autres logements T3 du programme "Renaissance"

Disponibilité Prix Genre Pièces Surface Étage
Voir
Optionné
172 000€ Appt. T3 65.75m2 2ème
DO NOT CLICK