287 999€
Appt. au 0-RDC
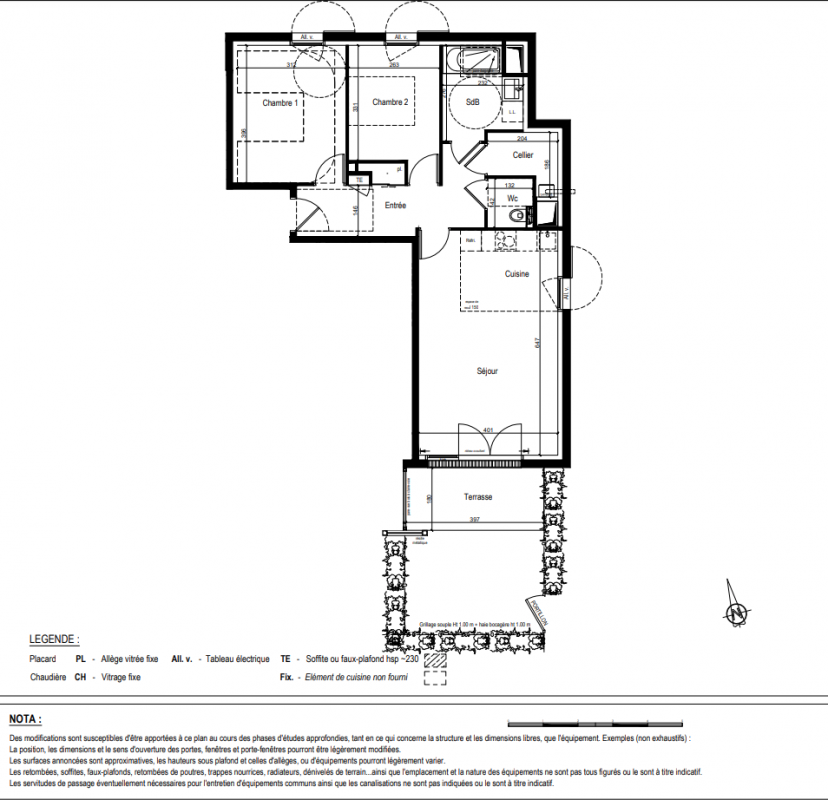
T3
67.49 m²
-
Crach (56950)
4ème trimestre 2025
01 81 80 39 10
Présentation du programme "Lann Ar Mor"
ACHETER VOTRE APPARTEMENT NEUF À PROXIMITÉ DU GOLFE DU MORBIHAN
Crac’h, la ville entre terre et mer
"Douar ha Mor" est l’autre nom de la ville de Crac’h - Douar en breton signifie terre et Mor signifie mer. La commune est bordée par la rivière d'Auray et par la rivière de Crac’h qui s’ouvrent sur l’Océan Atlantique.
À distance équivalente entre Vannes et Lorient, au cœur des lieux renommés tels que Carnac, le Golfe du Morbihan, Quiberon et ses îles, Crac’h bénéficie d’un emplacement idéal pour une résidence principale ou secondaire.
Appartements neufs du 2 au 4 pièces à Crac’h
La résidence Lann Ar Mor est composé de 51 appartements neufs du 2 au 4 pièces.
Elle est située au coeur d'un ilot entièrement piéton, à 300m du cœur de bourg de Crac’h, de ses commerces et services. Lumineux et fonctionnels, vous profiterez dans chaque appartement de cuisine, salle de bains aménagées et d’un extérieur.
Idéal pour votre résidence principale/secondaire comme pour votre investissement locatif !
Promoteur national et tout particulièrement présent dans le Morbihan depuis plus de 25 ans, Vianova vous propose, en tant qu’expert de la promotion immobilière, la résidence Lan Ar Mor à Crac’h. N’hésitez pas à nous contacter pour votre projet de résidence principale ou d’investissement locatif en VEFA dans le Golfe du Morbihan.
Autres logements T3 du programme "Lann Ar Mor"
| Disponibilité | Prix | No | Genre | Pièces | Surface | Étage | Disponibilité | Prix | ||
|---|---|---|---|---|---|---|---|---|---|---|
| Voir | Disponible | 303 999€ | A004 | Appt. | T3 | 70.33m2 | 0-RDC | Disponible | 303 999€ | Voir |
| Voir | Disponible | 312 999€ | A011 | Appt. | T3 | 70.33m2 | 1er | Disponible | 312 999€ | Voir |
| Voir | Disponible | 318 999€ | A015 | Appt. | T3 | 70.33m2 | 1er | Disponible | 318 999€ | Voir |
| Voir | Disponible | 317 999€ | B001 | Appt. | T3 | 70.33m2 | 0-RDC | Disponible | 317 999€ | Voir |
| Voir | Disponible | 336 999€ | B015 | Appt. | T3 | 70.33m2 | 1er | Disponible | 336 999€ | Voir |
| Voir | Disponible | 326 999€ | C011 | Appt. | T3 | 69.62m2 | 1er | Disponible | 326 999€ | Voir |
| Voir | Disponible | 299 000€ | D011 | Appt. | T3 | 67.49m2 | 1er | Disponible | 299 000€ | Voir |
| Voir | Disponible | 306 999€ | D014 | Appt. | T3 | 69.62m2 | 1er | Disponible | 306 999€ | Voir |
| Voir | Disponible | 319 998€ | D022 | Appt. | T3 | 65.91m2 | 2ème | Disponible | 319 998€ | Voir |
| Voir | Disponible | 308 000€ | E001 | Appt. | T3 | 67.59m2 | 0-RDC | Disponible | 308 000€ | Voir |
| Voir | Disponible | 329 999€ | E011 | Appt. | T3 | 69.88m2 | 1er | Disponible | 329 999€ | Voir |
| Voir | Disponible | 357 999€ | E021 | Appt. | T3 | 72.49m2 | 2ème | Disponible | 357 999€ | Voir |
| Voir | Disponible | 361 998€ | E022 | Appt. | T3 | 74.18m2 | 2ème | Disponible | 361 998€ | Voir |
| Voir | Disponible | 338 000€ | C021 | Appt. | T3 | 65.91m2 | 2ème | Disponible | 338 000€ | Voir |
| Voir | Disponible | 338 000€ | B011 | Appt. | T3 | 70.37m2 | 1er | Disponible | 338 000€ | Voir |
| Voir | Disponible | 323 999€ | C014 | Appt. | T3 | 67.49m2 | 1er | Disponible | 323 999€ | Voir |
| Voir | Disponible | 321 999€ | A021 | Appt. | T3 | 64.46m2 | 2ème | Disponible | 321 999€ | Voir |
| Voir | Disponible | 329 999€ | E014 | Appt. | T3 | 69.4m2 | 1er | Disponible | 329 999€ | Voir |