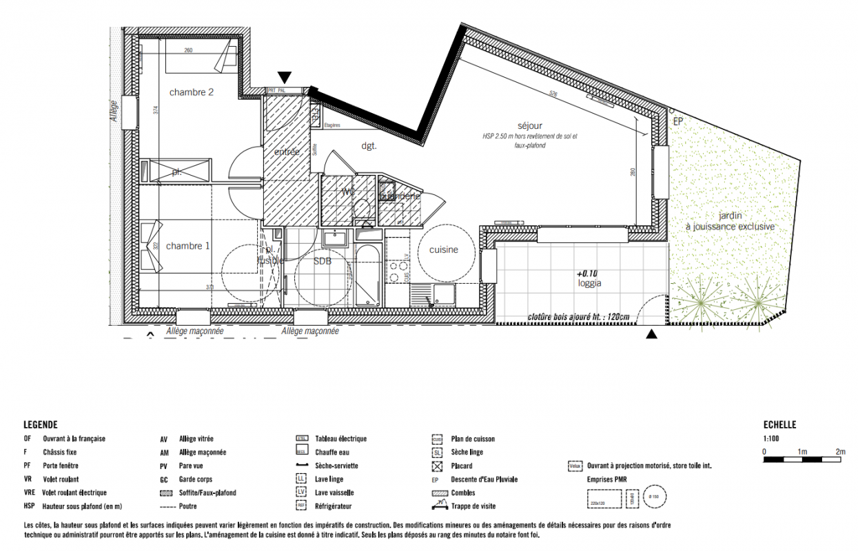
Prix
314 000€
Type
Appt. au 0-RDC
Pièces
T3
Surface
66 m²
Exposition
-
Ville
Saint-Malo (35400)
Livraison
3ème trimestre 2026
Informations
01 81 80 39 10

Présentation du programme "MALORETTE"

Autres logements T3 du programme "MALORETTE"

Disponibilité Prix Genre Pièces Surface Étage
Voir
Disponible
284 000€ Appt. T3 56.9m2 2ème
DO NOT CLICK