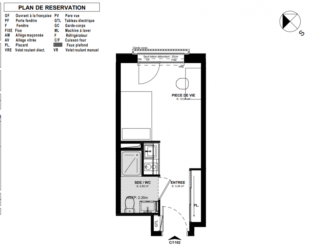
Prix
170 000€
Type
Appt. au 11ème
Pièces
Studio
Surface
18.25 m²
Exposition
-
Ville
Rennes (35000)
Livraison
1er trimestre 2028
Informations
01 81 80 39 10

Présentation du programme "KLEEZI | LOUIS GUILLOUX"

[ SUCCES COMMERCIAL– INVESTISSEMENT LOCATIF ] PACK MEUBLES OFFERT – Profitez-en dès maintenant !*

RENNES – Résidence KLEEZI | LOUIS GUILLOUX
Un emplacement stratégique au cœur d’une métropole étudiante en plein essor.

La résidence KLEEZI bénéficie d’une situation idéale, à proximité immédiate de deux grands bassins de vie universitaire :

Agrocampus Ouest Rennes, reconnu pour ses formations d’excellence en agronomie et en sciences du vivant, accueille près de 2 000 étudiants français et internationaux.

Le campus de Villejean – Université Rennes 2, plus grand site universitaire de Bretagne, regroupe environ 23 000 étudiants spécialisés dans les lettres, les langues, les sciences humaines et sociales.

Investissez dans un logement conçu pour les étudiants et jeunes actifs, et profitez de la solution clé en main Lamotte :
- Mobilier entièrement fourni, avec le PACK MEUBLES OFFERT
- Gestion locative et comptable sur mesure(2)
- Accompagnement bancaire personnalisé pour vos financements
- Des studios fonctionnels et innovants

Pensés pour le confort, la qualité et la performance énergétique, les appartements de la résidence KLEEZI allient design, praticité et rentabilité.

Un investissement sûr et optimisé

Grâce à la fiscalité avantageuse du dispositif LMNP(1), percevez des revenus complémentaires peu ou non fiscalisés tout en diversifiant votre patrimoine immobilier.

À proximité immédiate :

Universités et grandes écoles (Agrocampus, Rennes 1, Rennes 2, INSA, ENS, etc.)
Transports en commun (bus, métro)
Centre-ville, commerces, et pôles culturels rennais.

Pour en savoir plus, contactez nos conseillers Lamotte à Rennes ou rendez-vous sur LAMOTTE.FR pour profiter de cette opportunité unique d’investissement étudiant et jeunes actifs!

*(1) Sous réserve des conditions légales d’éligibilité au dispositif LMNP suivant loi de finances en vigueur.
(2) Gestion comptable par un cabinet offerte la première année.
Conditions de l’offre sur le site Lamotte.fr

Autres logements Studio du programme "KLEEZI | LOUIS GUILLOUX"

Disponibilité Prix Genre Pièces Surface Étage
Voir
Disponible
156 000€ Appt. Studio 17.94m2 10ème
Voir
Disponible
157 000€ Appt. Studio 18m2 11ème
Voir
Disponible
158 000€ Appt. Studio 17.94m2 11ème
Voir
Disponible
158 000€ Appt. Studio 18.25m2 11ème
Voir
Disponible
157 000€ Appt. Studio 17.65m2 11ème
Voir
Disponible
183 000€ Appt. Studio 20.48m2 0-RDC
Voir
Disponible
160 000€ Appt. Studio 18m2 12ème
Voir
Disponible
160 000€ Appt. Studio 18.25m2 12ème
Voir
Disponible
160 000€ Appt. Studio 17.94m2 12ème
Voir
Disponible
186 000€ Appt. Studio 20.48m2 0-RDC
Voir
Disponible
220 000€ Appt. Studio 33.99m2 0-RDC
Voir
Disponible
171 000€ Appt. Studio 25.83m2 0-RDC
Voir
Disponible
234 000€ Appt. Studio 34.76m2 1er
Voir
Disponible
160 000€ Appt. Studio 22.78m2 1er
Voir
Disponible
160 000€ Appt. Studio 22.61m2 1er
Voir
Disponible
160 000€ Appt. Studio 22.69m2 1er
Voir
Disponible
236 000€ Appt. Studio 34.76m2 2ème
Voir
Disponible
169 000€ Appt. Studio 22.78m2 2ème
Voir
Disponible
161 000€ Appt. Studio 22.61m2 2ème
Voir
Disponible
161 000€ Appt. Studio 22.69m2 2ème
Voir
Disponible
155 000€ Appt. Studio 20.48m2 2ème
Voir
Disponible
225 000€ Appt. Studio 34.76m2 3ème
Voir
Disponible
162 000€ Appt. Studio 22.78m2 3ème
Voir
Disponible
164 000€ Appt. Studio 20.48m2 3ème
Voir
Disponible
164 000€ Appt. Studio 22.78m2 4ème
Voir
Disponible
164 000€ Appt. Studio 22.11m2 4ème
Voir
Disponible
177 000€ Appt. Studio 21.04m2 5ème
Voir
Disponible
177 000€ Appt. Studio 22.78m2 5ème
Voir
Disponible
166 000€ Appt. Studio 22.11m2 5ème
Voir
Disponible
179 000€ Appt. Studio 21.04m2 6ème
Voir
Disponible
169 000€ Appt. Studio 22.78m2 6ème
Voir
Disponible
179 000€ Appt. Studio 22.11m2 6ème
Voir
Disponible
152 000€ Appt. Studio 17.65m2 6ème
Voir
Disponible
158 000€ Appt. Studio 20.48m2 6ème
Voir
Disponible
163 000€ Appt. Studio 20.48m2 8ème
Voir
Disponible
155 000€ Appt. Studio 18.11m2 9ème
Voir
Disponible
155 000€ Appt. Studio 18.25m2 9ème
Voir
Disponible
155 000€ Appt. Studio 17.94m2 9ème
Voir
Optionné
155 000€ Appt. Studio 18.1m2 9ème
Voir
Disponible
166 000€ Appt. Studio 20.48m2 9ème
Voir
Disponible
166 000€ Appt. Studio 18.25m2 10ème
Voir
Disponible
170 000€ Appt. Studio 20.48m2 10ème
DO NOT CLICK