Prix
295 975€
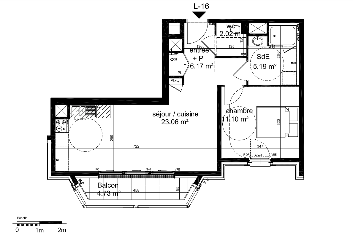
Type
Appt. au 0-RDC
Pièces
T2
Surface
47.9 m²
Exposition
Est
Ville
Dinard (35800)
Livraison
1er trimestre 2026
Informations
01 81 80 39 10

Présentation du programme "ART DECO - Meublé"

Ce nouveau quartier de grand standing (site de l'ancienne gare) permet de tout faire à pied et de rejoindre sans contraintes les halles, la plage, le marché, les commerces.

Les logements, à la géométrie travaillée, constituent un rappel des grandes villas, témoins incontournables de l'architecture balnéaire dinardaise.

Volumétries, ­articulations en plans et en ­façades, grandes baies vitrées, bow-windows, frontons ou ­corniches, balcons et loggias sont autant d'éléments à souligner.

L'ensemble des stationnements est situé en sous-sol avec accès sécurisé.

Le programme propose des prestations de qualité :

- Carrelage grand format dans les pièces de vie
- Parquet contrecollé dans les chambres
- Placards équipés
- Salles de bains et salles d'eau : meuble-vasque avec panneau miroir et applique, sèche-serviettes et pare-douche
- Volets roulants électriques sur toutes les fenêtres
- Terrasses, balcons ou loggias
- Halls d'entrée à double contrôle : clés électroniques et vidéophone
- Ascenseur desservant tous les niveaux
- Porte palière avec serrure de sûreté 3 points

Autres logements T2 du programme "ART DECO - Meublé"

Disponibilité Prix Genre Pièces Surface Étage
Voir
Disponible
267 475€ Appt. T2 45.75m2 0-RDC
DO NOT CLICK