Prix
361 991€
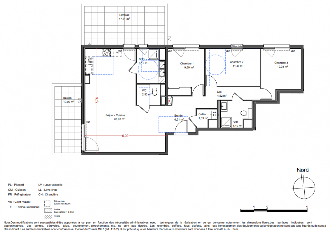
Type
Appt. au 2ème
Pièces
T4
Surface
92 m²
Exposition
Nord-Ouest
Ville
Besançon (25000)
Livraison
3ème trimestre 2027
Informations
01 81 80 39 10

Présentation du programme "VUE CITADELLE"

Autres logements T4 du programme "VUE CITADELLE"

Disponibilité Prix Genre Pièces Surface Étage
Voir
Disponible
348 241€ Appt. T4 85m2
Le bon plan
0-RDC
Voir
Disponible
360 249€ Appt. T4 85m2 1er
DO NOT CLICK