Prix
160 324€
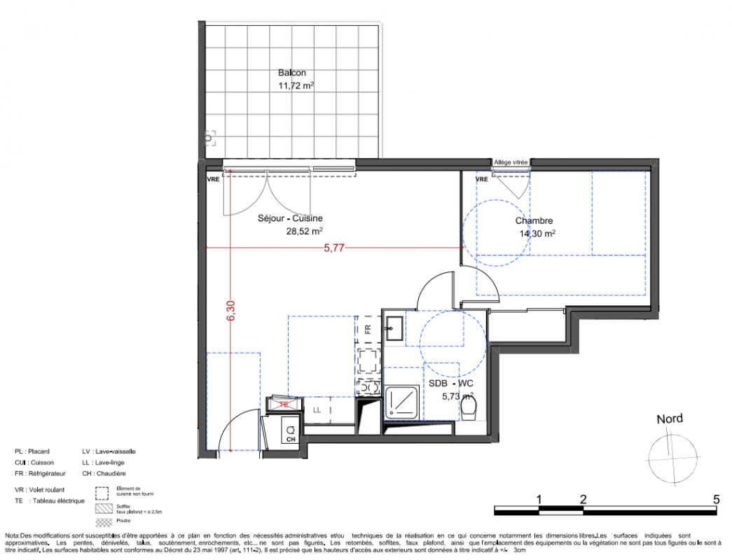
Type
Appt. au 1er
Pièces
T2
Surface
48 m²
Exposition
Nord-Est
Ville
Besançon (25000)
Livraison
3ème trimestre 2027
Informations
01 81 80 39 10

Présentation du programme "VUE CITADELLE"

Autres logements T2 du programme "VUE CITADELLE"

Disponibilité Prix Genre Pièces Surface Étage
Voir
Disponible
155 741€ Appt. T2 48m2 0-RDC
DO NOT CLICK