Prix
221 000€
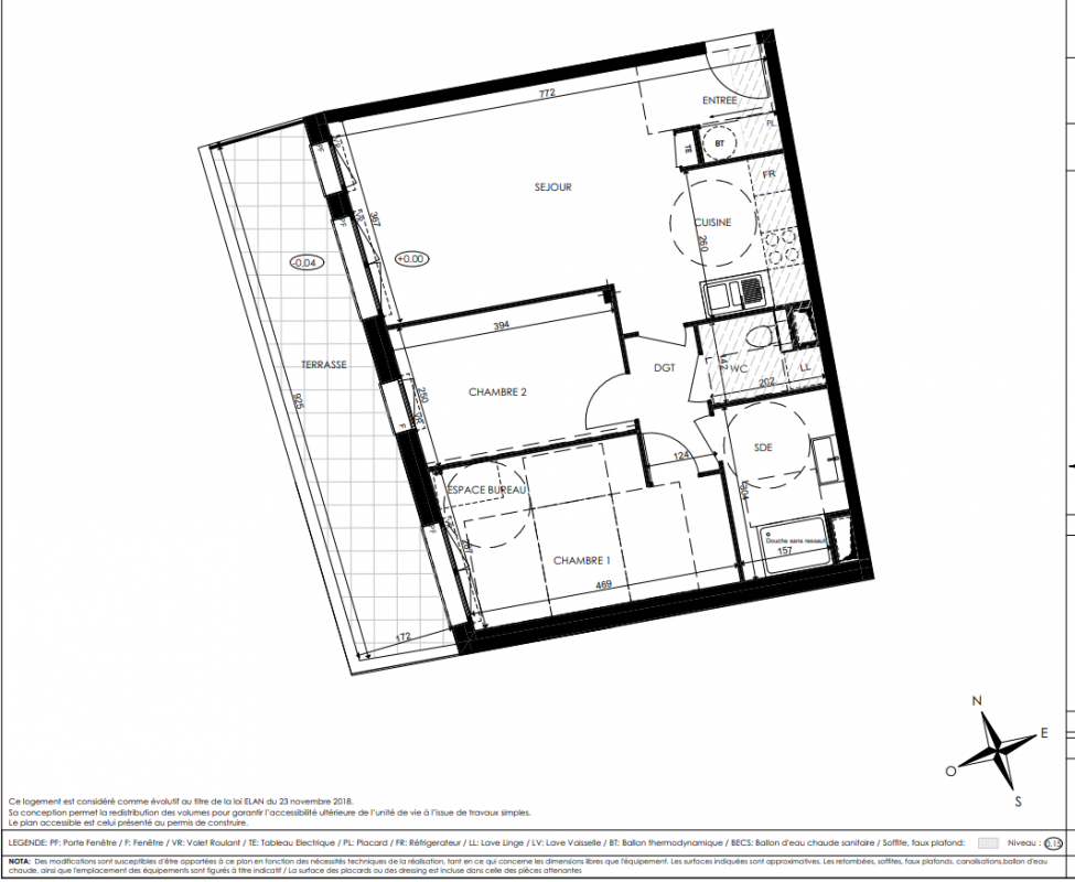
Type
Appt. au 0-RDC
Pièces
T3
Surface
63.5 m²
Exposition
Nord-Ouest
Ville
Plombières-lès-Dijon (21370)
Livraison
3ème trimestre 2027
Informations
01 81 80 39 10

Présentation du programme "Les Jardins d’Oscara"

Profitez des offres en cours, sur cette nouvelle signature Kaufman & Broad
Ce nouveau projet immobilier réunit des atouts pour investir dans l’agglomération dijonnaise. À 1 km* de l’A38 et à 1,5 km* de la Lino (liaison nord de Dijon), il bénéficie d’une localisation pratique permettant de rayonner facilement vers les principaux bassins d’emploi de l’agglomération, tout en profitant d’une adresse en plein cœur de ville. Le bus n° 12 en pied de résidence dessert la gare TGV en 15 min et Dijon centre en 20 min. Proche du lac Kir et de ses plages, Plombières-lès-Dijon est une destination recherchée avec peu d’offre dans le neuf. Cette rareté, associée au standing du programme, assure à votre bien une forte demande locative et de belles perspectives de valorisation patrimoniale. Il est également éligible au dispositif Pinel (zone B1) pour une fiscalité optimisée. * Source : Google Maps

Autres logements T3 du programme "Les Jardins d’Oscara"

Disponibilité Prix Genre Pièces Surface Étage
Voir
Disponible
214 000€ Appt. T3 62m2 0-RDC
Voir
Disponible
218 000€ Appt. T3 62m2 1er
Voir
Disponible
216 000€ Appt. T3 67.5m2 0-RDC
DO NOT CLICK