Prix
249 000€
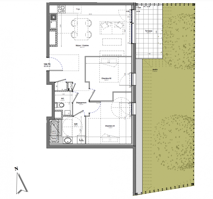
Type
Appt. au 0-RDC
Pièces
T3
Surface
60 m²
Exposition
Est
Ville
Fontaine-lès-Dijon (21121)
Livraison
1er trimestre 2027
Informations
01 81 80 39 10

Présentation du programme "LES SAFFRES D'OR"

Découvrez la dernière création de Nexity, LES SAFFRES D'OR : une résidence moderne située dans la commune en plein essor de Fontaine-lès-Dijon, à quelques minutes du centre de la métropole. Parfaite pour les familles et les professionnels, elle est à proximité de plusieurs établissements scolaires dont un collège et un lycée et à 5 min du centre commercial La Toison d'Or. De plus, la ligne de bus 9 assure une connexion rapide avec d'autres parties de la ville, facilitant le quotidien. Notre sélection d'appartements, du studio confortable au vaste 5 pièces, est conçue pour s'adapter à tous les styles de vie, entourée par les richesses culturelles et naturelles de Fontaine-lès-Dijon.

Autres logements T3 du programme "LES SAFFRES D'OR"

Disponibilité Prix Genre Pièces Surface Étage
Voir
Disponible
255 000€ Appt. T3 60m2 0-RDC
Voir
Disponible
238 999€ Appt. T3 62m2 2ème
DO NOT CLICK