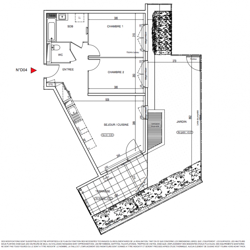
Prix
250 000€
250 000€
Type
Appt. au 0-RDC
Appt. au 0-RDC
Pièces
T3
T3
Surface
58.79 m²
58.79 m²
Exposition
Sud
Sud
Ville
Cognin (73160)
Cognin (73160)
Livraison
3ème trimestre 2028
3ème trimestre 2028
Informations
01 81 80 39 10
01 81 80 39 10
Présentation du programme "SCALA"
La proximité du centre-ville de Chambéry, un quartier résidentiel aux vues dégagées sur les reliefs, une offre complète d’équipements scolaires et sportifs, une excellente accessibilité… cette nouvelle résidence à Cognin profite d’un environnement attrayant qu’elle magnifie par son architecture intemporelle. Du studio au 4 pièces, découvrez un large éventail d’appartements avec jardins privatifs, terrasses de plain-pied, balcons, loggias ou terrasses plein ciel jusqu’à 100 m².