Prix
181 800€
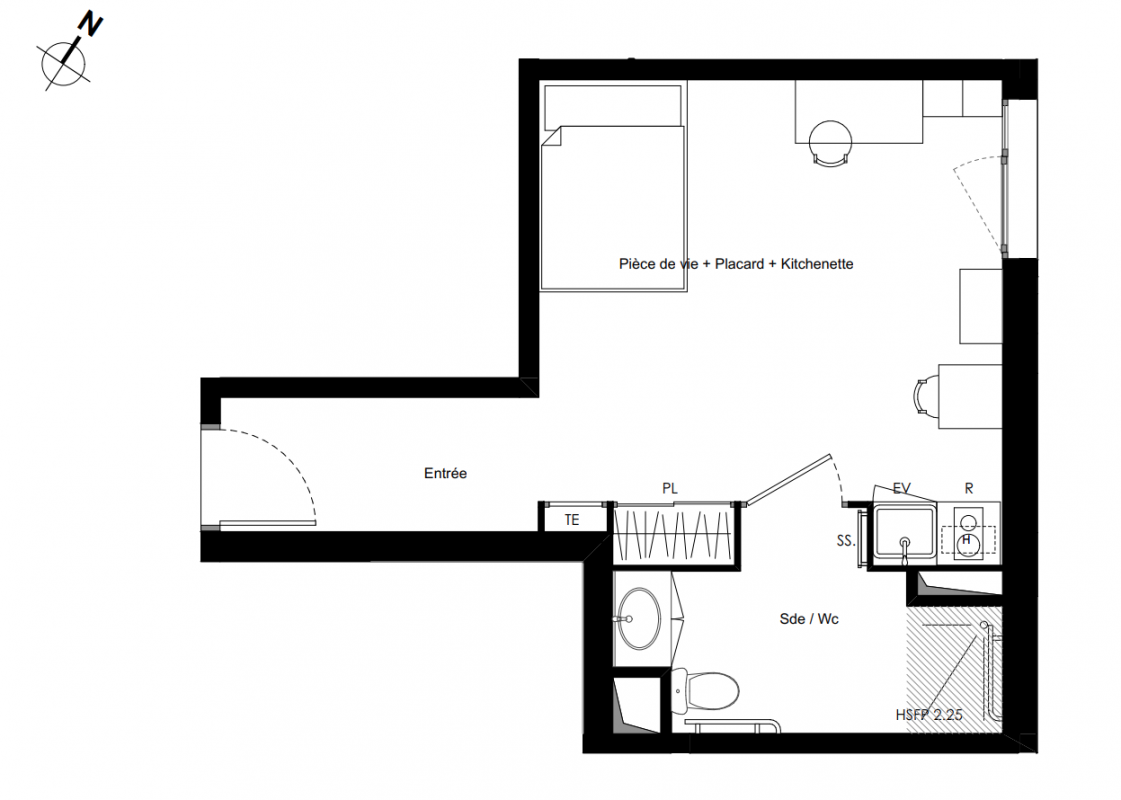
Type
Appt. au 2ème
Pièces
-
Surface
28.22 m²
Exposition
Nord-Est
Ville
Chambéry (73000)
Livraison
4ème trimestre 2026
Informations
01 81 80 39 10

Présentation du programme "SWEETLY CHAMBERY"

Située à l’angle des rues Jean Girard Madoux et du Margeriaz, la résidence Sweetly Chambéry propose un nouveau lieu de vie convivial et confortable.
Avec son architecture moderne, la résidence se compose de 137 appartements.
Elle offre des espaces communs chaleureux propices à la détente (espace de détente, coworking, gaming, terrasse commune, salle de fitness...).
Une terrasse commune et un espace vert arboré permettent aux résidents de partager des moments de convivialité.
Sweetly Chambéry est une résidence qui saura faciliter le quotidien de ses résidents grâce à son emplacement stratégique, à proximité des pôles d’emplois, des grandes écoles et universités.

Autres logements - du programme "SWEETLY CHAMBERY"

Disponibilité Prix Genre Pièces Surface Étage
Voir
Optionné
191 880€ Appt. - 29.2m2 3ème
Voir
Optionné
125 520€ Appt. - 18.53m2 1er
Voir
Optionné
128 040€ Appt. - 18.53m2 3ème
DO NOT CLICK