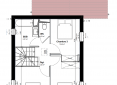
Appt. au 0-RDC
T4
89.2 m²
Est
Savigny (69210)
1er trimestre 2028
01 81 80 39 10
Présentation du programme "Les Hauts de Savigny"
À 40 km au nord de Lyon, Les Hauts de Savigny s'implantent dans un cadre naturel et verdoyant. Ce domaine paisible et verdoyant propose une architecture contemporaine et élégante, parfaitement intégrée au paysage champêtre environnant. Les maisons neuves de 3 et 4 chambres, ont été conçues pour allier confort et bien-être, avec des espaces lumineux et bien agencés. Chaque logement bénéficie d'un jardin privatif, pouvant atteindre jusqu'à 275 m², ainsi que d'un garage, offrant ainsi un espace extérieur généreux et fonctionnel, idéal pour les familles.Pensée pour maximiser l'ensoleillement, la résidence offre des espaces traversants, lumineux et fonctionnels, avec des matériaux de qualité et des finitions soignées. Pour ceux qui souhaitent une vie tranquille, la résidence s'inscrit dans un environnement naturel tout en étant à proximité des commodités essentielles, assurant ainsi un équilibre parfait entre nature et confort moderne.
Autres logements T4 du programme "Les Hauts de Savigny"
| Disponibilité | Prix | No | Genre | Pièces | Surface | Étage | Disponibilité | Prix | ||
|---|---|---|---|---|---|---|---|---|---|---|
| Voir | Disponible | 112 | Appt. | T4 | 87.43m2 | 0-RDC | Disponible | Voir | ||
| Voir | Disponible | 118 | Appt. | T4 | 89.2m2 | 0-RDC | Disponible | Voir | ||
| Voir | Disponible | 120 | Appt. | T4 | 89.23m2 | 0-RDC | Disponible | Voir | ||
| Voir | Disponible | 121 | Appt. | T4 | 89.2m2 | 0-RDC | Disponible | Voir | ||
| Voir | Disponible | 126 | Appt. | T4 | 89.2m2 | 0-RDC | Disponible | Voir | ||
| Voir | Disponible | 128 | Appt. | T4 | 89.2m2 Le bon plan | 0-RDC | Disponible | Voir | ||
| Voir | Disponible | 129 | Appt. | T4 | 89.2m2 | 0-RDC | Disponible | Voir | ||
| Voir | Disponible | 131 | Appt. | T4 | 89.2m2 | 0-RDC | Disponible | Voir | ||
| Voir | Disponible | 132 | Appt. | T4 | 89.2m2 | 0-RDC | Disponible | Voir | ||
| Voir | Disponible | 135 | Appt. | T4 | 89.2m2 | 0-RDC | Disponible | Voir | ||
| Voir | Disponible | 136 | Appt. | T4 | 89.2m2 | 0-RDC | Disponible | Voir | ||
| Voir | Disponible | 137 | Appt. | T4 | 89.2m2 | 0-RDC | Disponible | Voir |


