Prix
493 999€
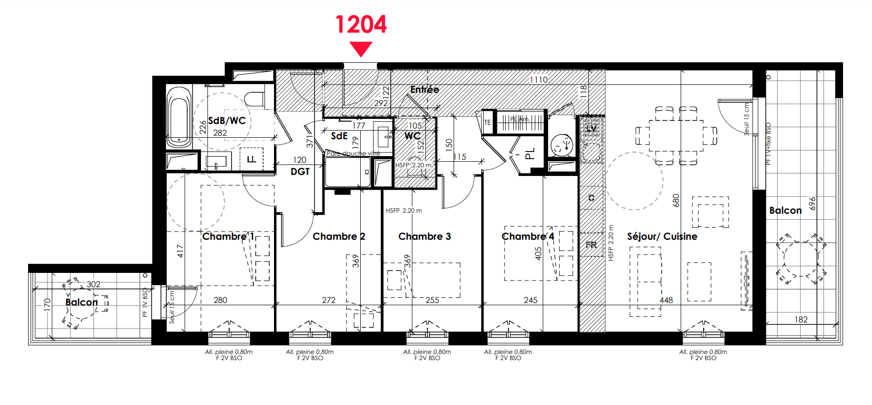
Type
Appt. au 2ème
Pièces
T5
Surface
98 m²
Exposition
-
Ville
Sainte-Foy-lès-Lyon (69110)
Livraison
4ème trimestre 2028
Informations
01 81 80 39 10

Présentation du programme "Résidence INTERVALLE"

Au coeur du nord de Sainte-Foy-lès-Lyon, à deux pas de la rue du Commandant Charcot, une nouvelle adresse d'exception s'apprête à voir le jour : découvrez notre nouvelle Résidence INTERVALLE !

[OFFRE EXCEPTIONNELLE] Bénéficiez des frais de notaire OFFERTS !

Nichée dans un environnement verdoyant et résidentiel, notre nouvelle Résidence INTERVALLE propose une collection d'appartements du studio au 5 pièces et dévoile une architecture contemporaine et élégante. Grandes terrasses, loggias, vues dégagées et orientations privilégiées viennent sublimer chaque appartement.

Idéalement connectée à Lyon, Francheville et au bassin d'emploi de l'Ouest lyonnais, la résidence offre un équilibre parfait entre calme, mobilité et qualité de vie. Proximité des écoles, des transports et des commerces : tout est pensé pour simplifier le quotidien !

Une opportunité rare dans un secteur recherché, pour habiter ou investir dans un cadre résidentiel, tout en restant proche de l'essentiel.

Autres logements T5 du programme "Résidence INTERVALLE"

Disponibilité Prix Genre Pièces Surface Étage
Voir
Disponible
699 000€ Appt. T5 104m2
Le bon plan
4ème
DO NOT CLICK