228 000€
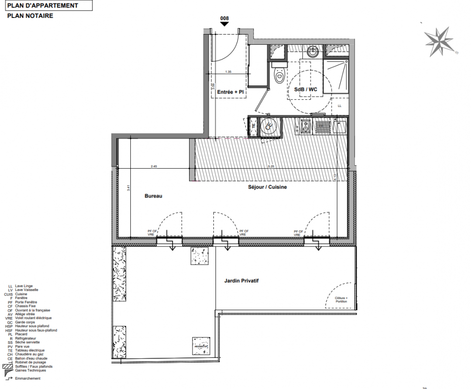
Appt. au 0-RDC
Studio
40.67 m²
-
Rillieux-la-Pape (69140)
2ème trimestre 2026
01 81 80 39 10
Présentation du programme "ESPRIT CREPIEUX"
[ - LANCEMENT - ] Aux portes de LYON, dans le quartier historique de Crépieux, à Rillieux-La-Pape, la nouvelle résidence ESPRIT CREPIEUX offre le charme d’une vie agréable avec toutes les commodités à moins de 100 m. Gare et arrêts de bus sont aussi très proches à pied pour rejoindre Lyon Part-Dieu en 15 minutes. Les appartements du studio au 4 pièces sont spacieux et ont été pensés pour un aménagement intérieur de qualité. Jardins privatifs, grandes loggias et terrasses dégagées composent des univers extérieurs agréables, à l’abri des regards. En attique, des terrasses d’exception réservent le plaisir de belles expositions. A deux pas des bords du Rhône, profitez d’une nouvelle quiétude résidentielle entre cœur nature et dynamisme urbain. Résidence éligible au dispositif PINEL.