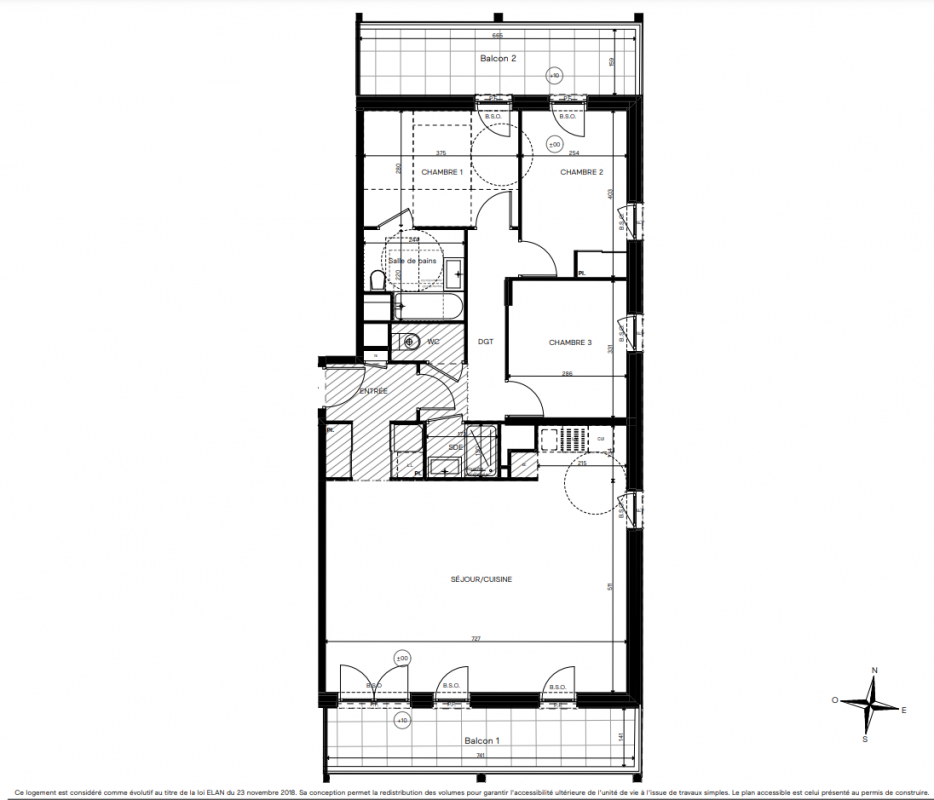
Prix
484 000€
Type
Appt. au 2ème
Pièces
T4
Surface
91.72 m²
Exposition
Sud-Est
Ville
Lyon 5ème (69005)
Livraison
3ème trimestre 2028
Informations
01 81 80 39 10

Présentation du programme "Madera"

Une adresse privilégiée et verdoyante
Véritable carrefour européen, à la confluence entre Paris, l’Allemagne, la Suisse et l’Italie, Lyon est régulièrement sacrée métropole la plus attractive de l’Hexagone par les différents analystes. Les raisons de son succès ? Une prospérité économique sans faille, avec près d’un million d’emplois dans son aire urbaine et un faible taux de chômage, une belle effervescence culturelle et universitaire, des transports efficaces et une qualité de vie louable.Verdoyant, familial et dynamique, le 5e arrondissement propose un art de vivre raffiné, trait d’union entre l’activité de Lyon-centre et la sérénité des communes des Monts d’Or toutes proches. Une adresse idéale pour réaliser un placement immobilier performant et pérenne.* Source : Google Maps

Autres logements T4 du programme "Madera"

Disponibilité Prix Genre Pièces Surface Étage
Voir
Disponible
494 000€ Appt. T4 91.72m2 3ème
DO NOT CLICK