Prix
146 000€
Type
Appt. au 4ème
Pièces
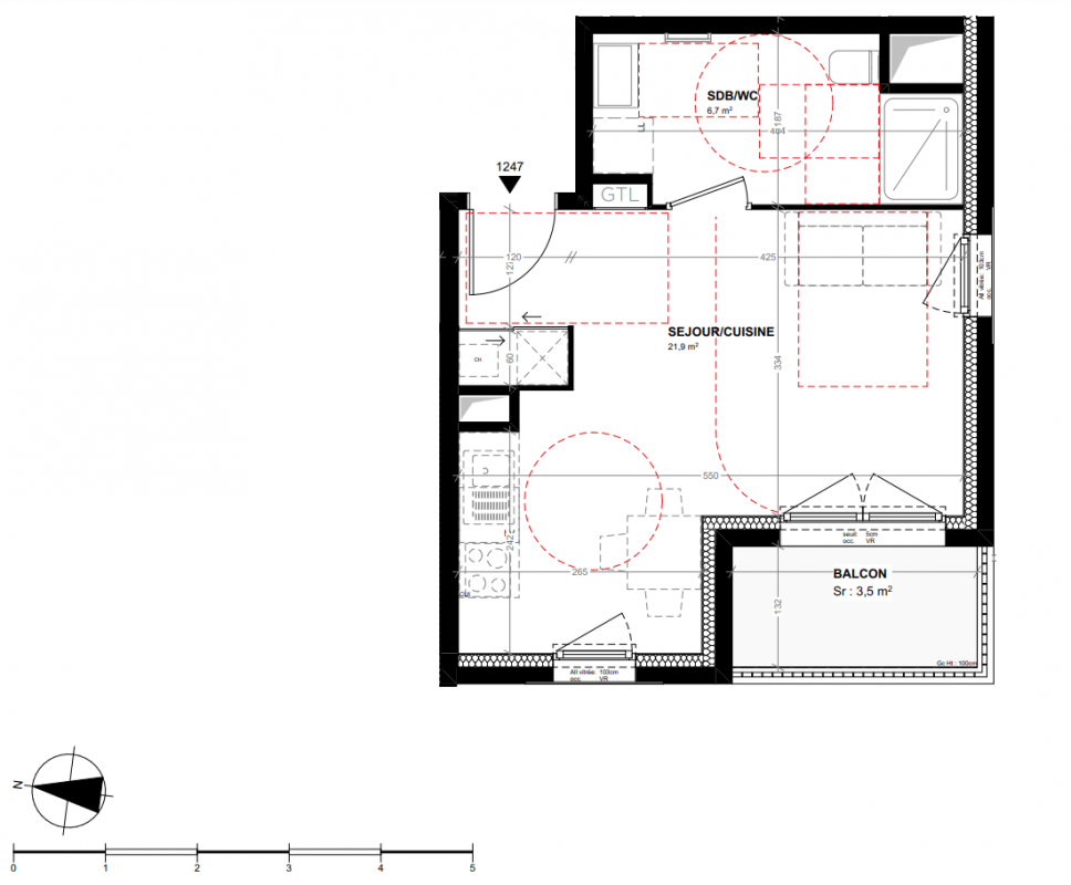
Studio
Surface
28.6 m²
Exposition
Ouest
Ville
Clermont-Ferrand (63000)
Livraison
3ème trimestre 2026
Informations
01 81 80 39 10

Présentation du programme "Quartz"

Vous souhaitez le mettre en location ? Vous avez le choix entre de la location nue ou meublée avec un pack gestionnaire. Contactez nos équipes pour une simulation.Investissez dans une ville au riche patrimoine historique et offrant un cadre de vie convivialClermont-Ferrand est reconnue pour son histoire, ses paysages volcaniques et son dynamisme urbain. Elle offre un patrimoine architectural unique, notamment avec sa célèbre cathédrale gothique Notre-Dame-de-l'Assomption. Clermont-Ferrand est réputée pour son Festival international du court métrage ainsi que pour ses nombreux musées, comme le musée d'Art Roger-Quilliot.La ville dispose de nombreux espaces verts et parcs tels que le Jardin Lecoq. Clermont-Ferrand, une ville avec un fort dynamisme économique Capitale régionale, Clermont-Ferrand attire de nombreux étudiants, professionnels et familles, assurant un potentiel locatif solide.Ville en pleine transformation, Clermont-Ferrand se distingue par son éco-quartier Saint-Jean, un exemple de renouveau urbain offrant un cadre de vie moderne et durable.Elle dispose d'un pôle industriel de premier plan avec la présence du groupe Michelin, principal employeur de la région. Commodités et transportsDivers commerces, supermarchés et centres commerciaux, ainsi que des établissements scolaires sont à proximité immédiate. À seulement quelques minutes du centre-ville, la résidence permet de profiter de l’animation urbaine tout en étant à l’écart des nuisances.La gare de Clermont-Ferrand est à quelques minutes seulement et la résidence est desservie par les lignes de tramway A et B. Focus prestations et servicesRésidence répondant aux normes RE2020.Hall d’entrée design, local à vélos, et espaces extérieurs à disposition des résidents.Appartements avec des prestations de qualité : parquet stratifié, carrelage en cérame, volets roulants électriques. Le + du programmeLe Quartz se distingue par son approche bioclimatique, avec des logements conçus pour maximiser l’éclairage naturel et la ventilation. Cela assure un confort de vie optimal, tout en réduisant la consommation énergétique.

Autres logements Studio du programme "Quartz"

Pas de logements disponibles
DO NOT CLICK