Prix
269 880€
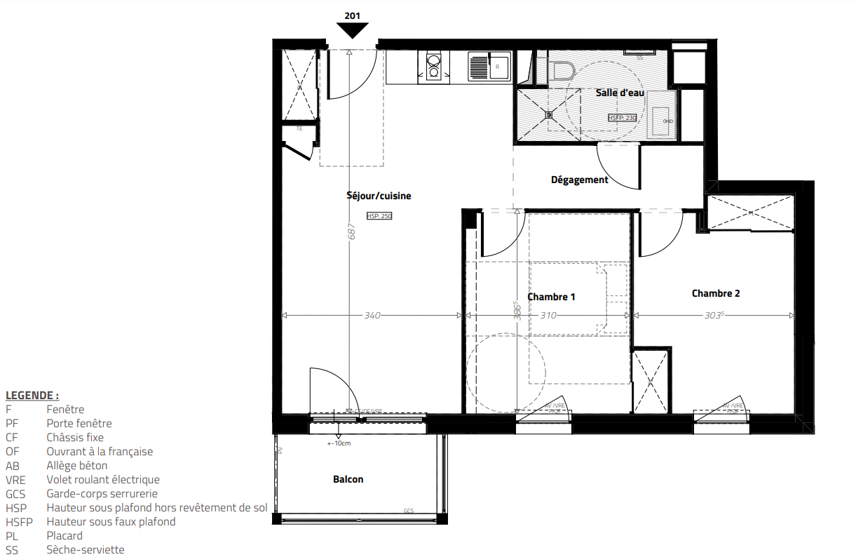
Type
Appt. au 2ème
Pièces
T3
Surface
58.8 m²
Exposition
-
Ville
L'Étrat (42580)
Livraison
1er trimestre 2028
Informations
01 81 80 39 10

Présentation du programme "RÉSIDENCE SAINT-ROCH - Résidence Seniors - LMNP"

[ SPÉCIAL INVESTISSEURS ] // L’ETRAT - Découvrez la Résidence Services Seniors SAINT-ROCH, idéalement située à L’Etrat, une commune paisible et charmante entre ville et campagne, à seulement 7 km de Saint-Étienne et 63 km de Lyon. Un investissement idéal pour se constituer des revenus complémentaires et préparer sa retraite

Profitez de tous les AVANTAGES DU STATUT LMNP (Loueur Meublé Non Professionnel) : exonération de la TVA *, loyers GARANTIS par bail commercial de 12 ans minimum, rentabilité annuelle attractive, gestion locative sereine et sans frais par un gestionnaire unique « Espace & Vie».

Ne manquez pas cette opportunité unique de réaliser un investissement d'avenir dans un marché en pleine croissance.

* Voir les conditions sur la page mentions légales de notre site Vianova.fr

Pour plus d’informations, contactez dès maintenant nos conseillers à Lyon ou visitez LAMOTTE.FR !

Autres logements T3 du programme "RÉSIDENCE SAINT-ROCH - Résidence Seniors - LMNP"

Disponibilité Prix Genre Pièces Surface Étage
Voir
Disponible
267 360€ Appt. T3 58.8m2 1er
DO NOT CLICK