Ce lot n’est plus disponible chez VIANOVA ou est vendu.
Vous pouvez revenir dans 24h pour vérifier le stock à jour ou contacter un conseiller Vianova pour vérifier le stock en direct.
Vous pouvez également continuer votre recherche sur notre site « ici ».
262 180€ (TVA 20%)
230 500€ (TVA 5.5%)
Maison au 1er
T4
79.2 m²
Sud
Scionzier (74950)
3ème trimestre 2026
01 81 80 39 10
Présentation du programme "Les Jardins du printemps"
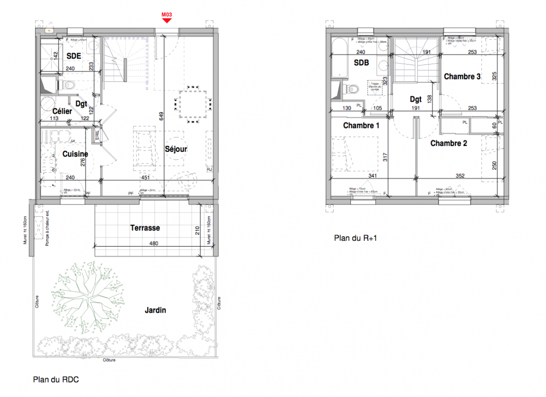
DEVENEZ PROPRIÉTAIRE DE VOTRE MAISON NEUVE GRACE AU BRS* !Dernière opportunité : maison duplex avec jardin et terrasse privative - 80 m² - pièce de vie ouverte sur l'extérieur - salle d'eau équipée et celier au RDC - 3 chambres à l'étage avec 1 salle de bains équipée. Votre maison T4 pour 229 200€* grâce au BRS* et à la TVA réduite à 5.5% - TRAVAUX EN COURS !229 200 €*Bienvenue à Scionzier ! Idéalement situé, ce nouvel ensemble de 5 maisons neuves vous permet d'accéder en moins de 500 mètres à toutes les commodités essentielles : écoles, boucherie, boulangerie, pharmacie, et bien plus encore.
Arve et son bassin d'emplois s'offrent à vous. Choisissez ici votre maison 3 chambres avec une terrasse généreuse et un jardin privatif clôturé, ainsi que deux places de stationnement extérieures.
*Devenez propriétaire à un prix abordable grâce au BRS (Bail Réel Solidaire), un dispositif sous conditions de ressources et d'éligibilité pour une acquisition en résidence principale.