Prix
2 050 000€
Type
Appt. au 1er
Pièces
T5
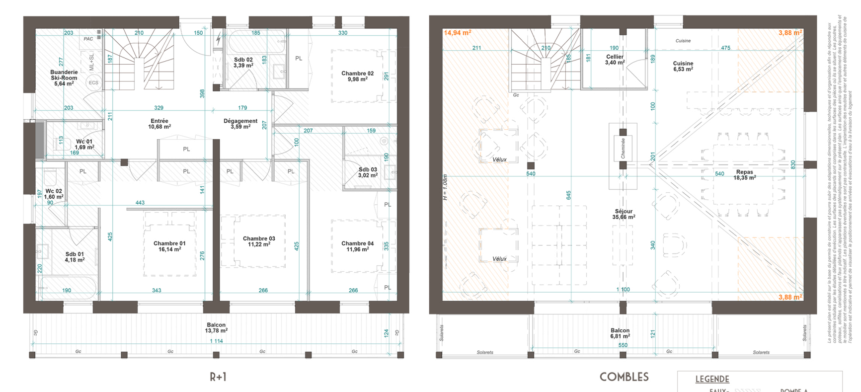
Surface
147.02 m²
Exposition
Ouest
Ville
La Clusaz (74220)
Livraison
-
Informations
01 81 80 39 10

Présentation du programme "Chalets ISQUI"

Situé dans le secteur recherché du Gotty, les Chalets ISQUI incarnent l’excellence de l’architecture savoyarde contemporaine. Cet ensemble confidentiel de 11 appartements conjugue le charme des matériaux nobles avec le confort d’équipements haut de gamme.Les duplex sont sublimés par des charpentes apparentes et des plafonds en lames de bois résineux qui célèbrent le savoir-faire montagnard. La résidence bénéficie d’un point de vue privilégié sur les paysages alpins. De larges ouvertures cadrent de magnifiques perspectives sur le massif de Beauregard, les alpages et les reliefs vallonnés environnants. Un panorama vivant qui se métamorphose au fil des saisons, des prairies verdoyantes de l’été aux étendues immaculées de l’hiver. À l’intérieur, parquet en chêne et habillages bois créent une ambiance chaleureuse et raffinée. Les balcons privatifs prolongent les espaces de vie au coeur d’un environnement naturel préservé.Les Chalets ISQUI incarnent l’excellence immobilière en montagne, où chaque détail a été pensé pour offrir un cadre de vie exceptionnel.FinitionsParquets en bois noble et carrelages élégantsPortes intérieures contemporaines et entrée sécuriséeHabillages et plafonds en bois naturel créant une atmosphère chaleureuseBien-êtreMenuiseries hautes performances avec volets motorisés et occultations intégréesPossibilité d’installation d’un poêle ou d’une cheminéeEspace de vieSalles de bains équipées d’installations haut de gamme :baignoire ou douche design, meuble vasque bois, WC suspenduBalcons en bois, harmonieux et durablesLa Clusaz jouit d’une accessibilité unique à 35 km d’Annecy et à moins de 55 km de Genève.Les Chalets ISQUI s’installent sur la route de la Sence, dans un cadre privilégié où l’authenticité savoyarde rencontre l’excellence d’une station de renommée internationale. Cet emplacement stratégique offre un accès immédiat aux pistes et au village. À quelquesminutes du centre, cette adresse préserve le calme recherché par une clientèle haut de gamme tout en bénéficiant de la proximité des commodités.

Autres logements T5 du programme "Chalets ISQUI"

Pas de logements disponibles
DO NOT CLICK