Ce lot n’est plus disponible chez VIANOVA ou est vendu.
Vous pouvez revenir dans 24h pour vérifier le stock à jour ou contacter un conseiller Vianova pour vérifier le stock en direct.
Vous pouvez également continuer votre recherche sur notre site « ici ».
324 000€
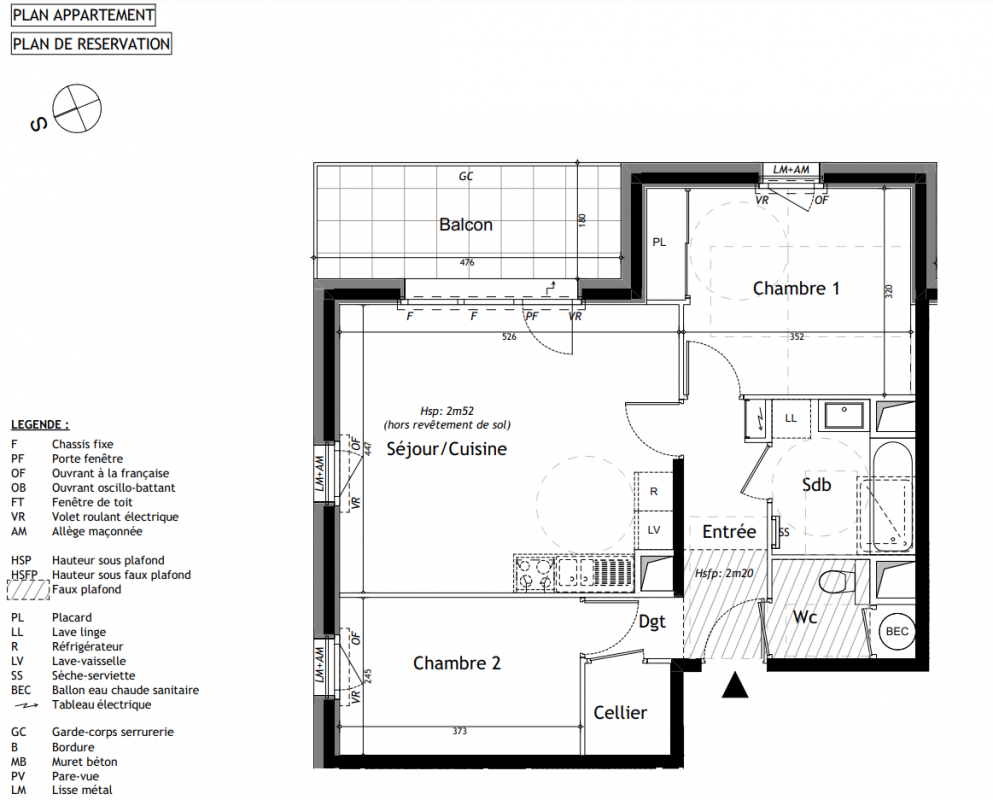
Appt. au 2ème
T3
60.61 m²
-
Contamines-Montjoie (74170)
4ème trimestre 2026
01 81 80 39 10
Présentation du programme "BELLE SOURCE"
[ - DERNIERES OPPORTUNITES - VOTRE APPARTEMENT A LA MONTAGNE ] // SAINT-GERVAIS-LES-BAINS - Offrez-vous un appartement neuf en Haute-Savoie et profitez des panoramas exceptionnels du pays du Mont-Blanc !
Notre résidence BELLE SOURCE propose des appartements 3 pièces avec loggia, dont certains en Duplex. Elle est idéalement située dans le quartier du Fayet.
Profitez d'un accès direct au centre de Saint-Gervais à pied ou à vélo, ainsi que d'un cadre de vie unique, entre nature et dynamisme.
Chaque appartement est pensé pour votre bien-être et propose des espaces fonctionnels et ouverts, avec de belles performances énergétiques (RE2020). Grâce à de larges ouvertures, la lumière naturelle entre généreusement et offre une vue imprenable sur les massifs environnants.
BELLE SOURCE allie charme alpin et prestations modernes. Pour votre confort, la résidence dispose de casiers à ski et d’un local à vélos afin d'allier praticité et bien-être.
.
Contactez nos équipes commerciales à AIX-LES-BAINS, ou rendez-vous sur LAMOTTE.FR. Ne manquez pas cette opportunité unique d’acquérir votre résidence à la montagne !
Autres logements T3 du programme "BELLE SOURCE"
| Disponibilité | Prix | No | Genre | Pièces | Surface | Étage | Disponibilité | Prix | ||
|---|---|---|---|---|---|---|---|---|---|---|
| Voir | Disponible | 319 000€ | A106 | Appt. | T3 | 62.52m2 | 1er | Disponible | 319 000€ | Voir |
| Voir | Optionné | 323 000€ | A206 | Appt. | T3 | 62.52m2 | 2ème | Optionné Mais pas encore vendu 😉 | 323 000€ | Voir |
| Voir | Disponible | 348 000€ | A308 | Appt. | T3 | 62.07m2 | 3ème | Disponible | 348 000€ | Voir |
| Voir | Optionné | 364 000€ | B202 | Appt. | T3 | 62.28m2 | 2ème | Optionné Mais pas encore vendu 😉 | 364 000€ | Voir |