Prix
276 000€
276 000€
Type
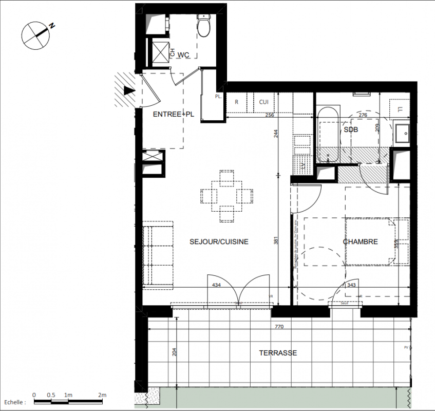
Appt. au 0-RDC
Appt. au 0-RDC
Pièces
T2
T2
Surface
50.68 m²
50.68 m²
Exposition
Est
Est
Ville
Cluses (74300)
Cluses (74300)
Livraison
2ème trimestre 2027
2ème trimestre 2027
Informations
01 81 80 39 10
01 81 80 39 10
Présentation du programme "CIME'O"
Nouveau !
Au cœur de la vallée de l’Arve, à Cluses, le programme CIMÉ’O
offre depuis son dernier étage une vue à 360° sur les montagnes et
la nature abondante qui l’entourent. Aux espaces intérieurs pensés
pour profiter d’un confort de vie optimal en famille s’ajoutent de
larges balcons aux dessins arrondis.
Composée de deux bâtiments à taille humaine, la résidence
CIMÉ’O offre 31 logements du rez-de-chaussée au 3e étage,
avec des attiques.
Chaque appartement dispose de généreux espaces extérieurs,
véritables pièces à vivre.
Contactez-nous dès maintenant ! Pour toutes informations complémentaires, prenez contact avec nous !

